Расчёт тормозной системы автомобиля
Представлен расчёт тормозной системы и процесса торможения легкового автомобиля. На основе заданных параметров автомобиля и его тормозной системы находятся характеристики торможения.
Привод тормозов
В гидравлическом приводе тормозов усилие, прикладываемое к педали тормоза, преобразуется в давление, которое, затем передаётся тормозным механизмам.
Привод без усилителя

В приводе без усилителя, сила на педали тормоза непосредственно преобразуется в давление на выходе главного тормозного цилиндра (ГТЦ)
где — площадь поршня ГТЦ, равная
— диаметр ГТЦ, — сила сопротивления на педали, учитывающая противодействие возвратной пружины и сил трения, — передаточное число педали тормоза, — коэффициент полезного действия (КПД) ГТЦ.
Характеристика привода без усилителя описывается следующим уравнением:
Вакуумный усилитель
В вакуумном усилителе тормозов к усилию на входе добавляется дополнительная сила, создаваемая за счёт разности давления в вакуумной и атмосферной полостях усилителя.

При перемещении входного толкателя открывается система клапанов и в атмосферную полость усилителя постепенно, порциями поступает давление воздуха. Соотношение усилия на входе и выходе в этот период определяется постоянством давления на передаточном элементе — буфере, усилителя[1].
где — площадь поршня толкателя на входе и — штока на выходе, которые находятся как
- ,
— диаметр поршня толкателя на входе, — диаметр штока на выходе.
Тогда,
где — передаточное число (коэффициент усиления) усилителя, равное
В реальном усилителе имеется сила сопротивления , вызванная противодействием пружин и сил трения. Кроме того, имеется скачок на характеристике, обусловленный конструктивными особенностями усилителя. С учетом всего этого, уравнение (4) запишется несколько иначе
Это соотношение действительно до тех пор, пока давление в атмосферной полости усилителя не станет равным атмосферному. Тогда, клапаны внутри усилителя полностью открываются, его следящее действие прекращается, происходит, так называемое, насыщение усилителя и к усилию на входе просто добавляется сила от разницы давлений в камерах.
где — площадь диафрагмы усилителя, равная
— диаметр диафрагмы усилителя, — разряжение в усилителе, — коэффициент полезного действия (КПД) усилителя, учитывающий то, что не вся площадь диафрагмы используется для создания усилия.
Усилие на входе , при котором происходит насыщение усилителя, находится подстановкой в уравнение (6) значения усилия на выходе из уравнения (7).
Полностью характеристика вакуумного усилителя тормозов опишется следующим уравнением
Привод с усилителем
В приводе с усилителем на вход усилителя тормозов подается сила от педали тормоза
а на выходе усилителя расположен главный тормозной цилиндр
Тогда, на с учётом зависимости (9), характеристика тормозного привода с усилителем описывается следующим уравнением
где — приведённая сила сопротивления на педали и в усилителе, то есть то усилие на педали тормоза, при котором появляется давление в главном тормозном цилиндре, после преодоления всех сил сопротивления,
— приведённая к педали тормоза сила насыщения усилителя, то есть сила на педали при которой прекращается следящее действие усилителя,

Если необходимо найти зависимость усилия на педали от давления в главном тормозном цилиндре, то такое уравнение запишется следующим образом
где — давление в ГТЦ, соответствующее скачку в усилителе, равное
а — давление в ГТЦ, соответствующее насыщению усилителя,
Тормозные механизмы
Тормозные механизмы (тормоза) преобразуют поступающее к ним из гидропривода давление в тормозной момент, за счёт прижатия колодок к барабану или диску.
Барабанный тормоз

Тормозной момент одной колодки барабанного тормоза находится как произведение равнодействующей распределённых сил трения на условный радиус трения
Соотношение равнодействующей сил трения к равнодействующей сил давления , прижимающих колодку к барабану, определяет коэффициент трения фрикционной пары
А соотношение между реальным радиусом тормозного барабана и условным радиусом трения, задаётся коэффициентом касательных сил
Тогда, тормозной момент колодки можно выразить следующим уравнением
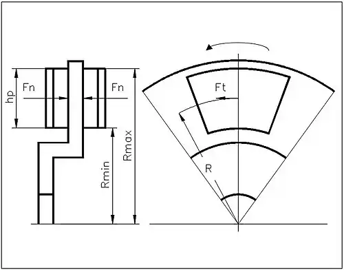
Равнодействующая сил давления находится из условия равновесия колодки относительно точки опоры (см. Рисунок 4)
где — сила от привода тормозов.
С учётом введённых ранее выражений для и , и после ряда преобразований
где — передаточное число активной или ведущей колодки, равное
— расстояние от точки приложение силы привода до нижней опоры колодок, — расстояние от центра тормоза до нижней опоры колодок, — половина ширины нижней опоры колодок.
Тогда тормозной момент колодки найдётся как
Для второй, пассивной или ведомой, колодки барабанного тормоза, расположенной симметрично, направление равнодействующей силы трения изменится на противоположное и её передаточное число будет равно
Тормозной момент этой колодки будет равен
Коэффициент касательных сил для колодки со скользящей нижней опорой и синусоидальном распределении давления по длине контакта[2]
где — угол охвата тормозной накладки в радианах.
Сила, действующая на колодку от привода, зависит от давления в гидроприводе тормозов
где — площадь поршня рабочего тормозного цилиндра,
— диаметр рабочего тормозного цилиндра, — давление срабатывания тормозного механизма, учитывающее силы сопротивления, — коэффициент полезного действия (КПД) тормозного цилиндра.
Тогда, в окончательном виде, тормозной момент барабанного тормоза находится как
где — суммарное передаточное обеих колодок тормоза
Дисковый тормоз
Расчёт дискового тормозного механизма аналогичен расчёту барабанного.

Поршень дискового тормоза напрямую прижимает колодку к диску, поэтому, сила прижатия колодки равна силе от привода
тогда передаточное число одной колодки, то есть отношение силы привода к тормозной силе будет просто равно коэффициенту трения
Радиус трения находится как центр тяжести кольцевого сектора
где — наружный радиус диска, — внутренний радиус диска, определяемый шириной (высотой) накладки
В итоге, тормозной момент дискового тормоза будет выражаться таким же, как и для барабанного уравнением
где передаточное число всего тормозного механизма с двумя колодками равно
Для обоих типов механизмов тормозной момент можно записать сокращённо
где — приведённое передаточное число тормозного механизма, равное
Торможение автомобиля
Торможение до блокировки колёс

При торможении автомобиля, из равенства действующих на него горизонтальных сил (см. Рисунок 6), замедление найдётся как
где , — тормозные силы на осях автомобиля, — замедление сопротивления движению, вызванное силами аэродинамического сопротивления, сопротивление качению и т.п., — масса автомобиля.
Тормозные силы на осях определяются тормозными моментами , , создаваемыми передними и задними тормозами
где , — количество тормозных механизмов на каждой из осей, — радиус качения колеса автомобиля.
С учетом ранее выведенной формулы тормозного момента (38), эти уравнения можно записать по-другому
где , — передаточные числа переднего и заднего тормозных механизмов, , — давление от гидропривода, поступающее в передние и задние тормоза, , — давление срабатывания переднего и заднего тормозов.
Отсюда нетрудно вычислить давления в передних и задних тормозах
Если давление в тормозных механизмах равно давлению в главном тормозном цилиндре, то есть,
то, после не сложных преобразований, зависимость замедления автомобиля от давления в приводе можно записать как
Теперь, если подставить в это уравнение ранее установленную взаимосвязь усилия на педали тормоза и давления в главном тормозном цилиндре (12), то можно построить зависимость замедления автомобиля от усилия на педали тормоза. Это то, что ощущает водитель при торможении, эргономическая характеристика тормозной системы, первая из важнейших характеристик тормозов.

Если необходимо найти давление в главном тормозном цилиндре по заданному замедлению, то его можно вычислить по следующей формуле
Предельные по сцеплению тормозные силы
Рост тормозных сил на осях автомобиля не бесконечен. В определённый момент они достигают предельных величин, ограниченных сцеплением шин с дорогой. При этом, либо колёса блокируются, либо срабатывает автоблокировочная система тормозов (АБС). И в том, и в другом случае тормозные силы становятся равными предельным по сцеплению.
где , — предельные по сцеплению тормозные силы на передней и задней осях автомобиля, — коэффициент сцепления шин с дорогой, , — вертикальные силы, действующие на оси автомобиля.
Вертикальные силы не сложно найти из уравнений моментов сил относительно точек контакта сначала передней, а затем задней осей (см. Рисунок 6)
где — ускорение свободного падения, , — часть массы автомобиля, приходящаяся на переднюю и заднюю оси (развесовка), — высота центра тяжести (ЦТ) автомобиля, — колёсная база.
Тогда, предельные по сцеплению тормозные силы на осях найдутся как
Торможение с заблокированными колёсами
Если вспомнить, что давления в приводе тормозов каждой из осей равны (47) и, приравняв выраженные через давления значения тормозных сил (45) и (46), можно получить зависимость задней тормозной силы от передней.
или,
где
Тогда, с учётом полученной зависимости и уравнения предельной по сцеплению тормозной силы (54), замедление автомобиля, при котором блокируется передняя ось в соответствии с (40) будет равно
После этого, автомобиль будет тормозить со следующим замедлением
Если первыми блокируются колёса задней оси, то, на основе аналогичных рассуждений, замедление автомобиля при блокировке задней оси будет следующим
но с другими коэффициентами
Далее, автомобиль будет тормозить со следующим замедлением
Следует заметить, что сначала блокируется (или срабатывает АБС) только одна ось автомобиля, та, у которой замедление блокировки меньше. После, некоторое время происходит торможение с указанным выше замедлением, а затем блокируется (или срабатывает АБС) вторая ось (см. Рисунок 7). С этого момента автомобиль тормозит с максимальным, определяемым только сцеплением шин с дорогой замедлением равным
Тормозные силы
Баланс тормозных сил
При торможении автомобиля с максимально возможным замедлением, предельные по сцеплению тормозные силы будут равны
По этим зависимостям можно построить график соотношения (баланса) предельных по сцеплению тормозных сил, задавая изменение коэффициента сцепления. Точки на полученной кривой соответствуют его определённым значениям. Прямая на этом же графике показывает соотношение реальных тормозных сил на осях автомобиля.
Взаимное расположение двух этих линий, то есть максимально возможных и реально создаваемых тормозных сил, определяет степень использования сцепления шин с дорогой при торможении, эффективность тормозной системы, вторую важнейшую характеристику тормозов.

Точка пересечения линий даёт критический коэффициент сцепления , при котором одновременно блокируются колёса передней и задней осей. Автомобиль, в этом случае, тормозит с максимально возможным при данном сцеплении шин с дорогой замедлением, также называемым критическим. Его обычно выражают в виде части от ускорения свободного падения , так его проще связать с коэффициентом сцепления.
где
— относительное критическое замедление автомобиля, — относительное замедление сопротивления.
Если автомобиль тормозит с замедление меньше критического, то есть его тормозные силы находятся в зоне ниже точки пересечения, то первыми блокируются колёса передней оси, если выше – то, задней.
Дополнительные построения на графике эффективности помогают лучше понять изменение соотношения тормозных сил в процессе торможения.
При торможении автомобиля с максимальным замедлением, с учётом (40), можно записать
Если первой блокируется передняя ось автомобиля, то сила на неё становиться равной предельной по сцеплению. Тогда, подставив предыдущее уравнение в зависимость (63), раскрыв предварительно скобки, получаем уравнение соотношения тормозных сил на осях автомобиля в зависимости от коэффициента сцепления, линию равных сцеплений
Пересечение этой линии с прямой реального соотношения тормозных сил означает блокировку колес передней оси при заданном коэффициенте сцепления.
Для случая блокировки колёс задней оси, в результате аналогичных рассуждений, уравнение линий равных сцеплений будет определяться следующим уравнением
Ещё одну вспомогательную, линию равных замедлений, можно построить просто проведя прямую под углом 45°, если масштаб на осях одинаковый. Действительно, сумма пары тормозных сил в любой точке на этой линии одна и та же. Следовательно, и замедление автомобиля также будет постоянным.
Таким образом, при торможении автомобиля на дороге с коэффициентом сцепления равным единице, первой в точке A (см. Рисунок 8) заблокируется задняя ось. Тормозная сила на неё станет предельной по сцеплению. При этом замедление автомобиля будет определяться линий равных замедлений, проходящей через эту точку. Его значение можно найти по пересечению этой линии с кривой предельного по сцеплению соотношения тормозных сил.
В ходе дальнейшего торможения, тормозная сила на задней оси будет немного снижаться в соответствии с линией A-B. Это связано с тем, что замедление автомобиля, продолжая расти, разгружает заднюю ось, уменьшая предельную по сцеплению тормозную силу в соответствии с (55). В точке B заблокируется передняя ось и замедление автомобиля достигнет предельной величины.
Критическое замедление
При одновременной блокировке передней и задней осей автомобиля, с учетом ранее выведенных формул (43) и (44) для определения тормозных сил, можно записать
Теперь, если тормозные силы выразить через давление, а затем приравнять давление в передних и задних тормозах (47), то можно получить квадратное уравнение, выражающее критический коэффициент сцепления через параметры автомобиля и его тормозной системы
где
Найденное в результате решения этого уравнения значение сцепления шин с дорогой будет тем единственным, при котором одновременно блокируются колеса обеих осей данного автомобиля. Соответствующее ему критическое замедление рассчитывается по (65).
Реализуемое сцепление
Исследовать тормозные силы можно, также, с помощью кривых реализуемого сцепления. Так называется отношение реальной тормозной силы на оси к вертикальной нагрузке на эту ось
где , — реализуемые сцепления передней и задней осей.
Так как предельная по сцеплению тормозная сила на оси зависит от вертикальной нагрузки, реализуемое сцепление, также, показывает, насколько далека реальная тормозная сила от предельной по сцеплению.

Для построения указанных графиков, сначала, при заданном замедлении, находится давление в главном тормозном цилиндре по (49). Затем, в соответствие с уравнениями (43) и (44), с учётом (47), рассчитываются реальные тормозные силы на осях. Вертикальные нагрузки на оси в зависимости от замедления находятся по зависимостям (52) и (53).
Правила N 13 Организации объединённых наций (ООН) ограничивают предельную величину относительного замедления для передней оси автомобиля в определенном диапазоне сцеплений[3]. Передней, потому что Правила требуют, чтобы при торможении первой блокировалась именно передняя ось. Таким образом задаются минимальные требования к замедлению всего автомобиля.
Для значений коэффициента сцепления в пределах 0,2–0,82 относительное замедление должно быть
Выражение для вертикальной нагрузки на переднюю ось можно выразить через
Тогда, из уравнения реализуемого сцепления для передней оси (73), можно записать
и, подставив сюда ограничение по относительному замедлению (75), получить величину, минимально необходимой для выполнения требований, тормозной силы спереди при соответствующем коэффициенте сцепления.
Если вспомнить, что речь идёт о торможении с максимальным замедлением, то из уравнения торможения автомобиля, тормозная сила на задней оси найдётся как
Так это ограничение можно показать на графике эффективности тормозной системы (см. Рисунок 8).
Используемые обозначения
| Обозначения | |
|---|---|
| Обозначение | Описание |
| сила на педали тормоза | |
| давление в главном тормозном цилиндре | |
| площадь поршня главного тормозного цилиндра | |
| диаметр главного тормозного цилиндра | |
| сила сопротивления на педали тормоза | |
| передаточное число педали тормоза | |
| коэффициент полезного действия главного тормозного цилиндра | |
| усилие на входе усилителя | |
| усилие на выходе усилителя | |
| площадь поршня толкателя на входе усилителя | |
| площадь штока на выходе усилителя | |
| диаметр поршня толкателя на входе усилителя | |
| диаметр штока на выходе усилителя | |
| передаточное число (коэффициент усиления) усилителя | |
| сила сопротивления в усилителе | |
| скачок в усилителе | |
| диаметр диафрагмы усилителя | |
| разряжение в усилителе | |
| коэффициент полезного действия усилителя | |
| усилие на входе, при котором прекращается следящего действия усилителя | |
| приведённая сила сопротивления на педали и в усилителе | |
| приведённая к педали тормоза сила насыщения усилителя | |
| давление в главном тормозном цилиндре, соответствующее скачку в усилителе | |
| давление в главном тормозном цилиндре, соответствующее насыщению усилителя | |
| тормозной момент | |
| сила трения, действующая на колодку | |
| условный радиус трения колодки | |
| сила, прижимающая колодку к барабану или диску | |
| коэффициент трения фрикционной пары тормоза | |
| сила в тормозе, действующая от привода тормозов | |
| передаточное число активной или ведущей колодки барабанного тормоза | |
| расстояние от точки приложение силы привода до нижней опоры колодок барабанного тормоза | |
| наружный радиус тормозного диска | |
| внутренний радиус тормозного диска | |
| ширина (высота) накладки колодки дискового тормоза | |
| приведённое передаточное число тормозного механизма | |
| расстояние от центра тормоза до нижней опоры колодок барабанного тормоза | |
| половина ширины нижней опоры колодок барабанного тормоза | |
| передаточное число пассивной или ведомой, колодки барабанного тормоза | |
| радиус тормозного барабана | |
| коэффициентом касательных сил колодки барабанного тормоза | |
| угол охвата накладки колодки барабанного тормоза | |
| давление срабатывания тормозного механизма | |
| коэффициент полезного действия тормозного цилиндра | |
| суммарное передаточное обеих колодок тормоза | |
| замедление автомобиля | |
| тормозная сила на передней оси автомобиля | |
| тормозная сила на задней оси автомобиля | |
| замедление сопротивления движению | |
| масса автомобиля | |
| тормозной момент, создаваемые передним тормозом | |
| тормозной момент, создаваемые задним тормозом | |
| количество тормозных механизмов на передней оси автомобиля | |
| количество тормозных механизмов на задней оси автомобиля | |
| радиус качения колеса автомобиля | |
| передаточное число переднего тормозного механизма | |
| передаточное число заднего тормозного механизма | |
| давление от гидропривода, поступающее в передние тормоза | |
| давление от гидропривода, поступающее в задние тормоза | |
| давление срабатывания переднего тормозного механизма | |
| давление срабатывания заднего тормозного механизма | |
| предельная по сцеплению тормозная силы на передней оси автомобиля | |
| предельная по сцеплению тормозная силы на задней оси автомобиля | |
| коэффициент сцепления шин с дорогой | |
| вертикальная сила, действующая на переднюю ось автомобиля | |
| вертикальная сила, действующая на заднюю ось автомобиля | |
| ускорение свободного падения | |
| часть массы автомобиля, приходящаяся на переднюю ось | |
| часть массы автомобиля, приходящаяся на заднюю ось | |
| высота центра тяжести автомобиля | |
| колёсная база | |
| замедление автомобиля, при котором блокируется передняя ось | |
| замедление автомобиля, при котором блокируется задняя ось | |
| критический коэффициент сцепления | |
| относительное критическое замедление автомобиля | |
| относительное замедление сил сопротивления | |
| реализуемое сцепление передней оси | |
| реализуемое сцепление задней оси | |
| относительное замедление | |
Примечания
- ↑ Скутнев, 1983, Гидравлический привод с вакуумным усилителем, с. 62.
- ↑ Мащенко, 1968, Таблица 1, с. 14.
- ↑ ООН, 2018, Приложение 5 Распределение торможения между осями транспортных средств, с. 45.
Литература
- Скутнев В. М. Тормозные системы легковых автомобилей. — Куйбышев: Куйбышевский авиационный институт, 1983. — С. 81. Архивировано 24 ноября 2020 года.
- А. Ф. Мащенко. Методика расчета колодочных тормозов. — Автомобильная промышленность. — Москва: Машиностроение, 1968. — С. 13—16. Архивировано 27 ноября 2020 года.
- Правила No 13-H ООН. Единообразные предписания, касающиеся официального утверждения легковых автомобилей в отношении торможения. — Организация объединенных наций, 2018. — 75 с. Архивировано 25 июля 2020 года.
- Мащенко А.Ф. Тормозная система автомобиля. — Москва: Высшая школа, 1972. — 135 с.
- Manfred Burckhardt. Fahrwerktechnik: Bremsdynamik und PKW-Bremsanlagen (нем.). — Vogel Communications Group, 1991. — 416 p.