Дом искусства (Мюнхен)
| Дом искусства | |
|---|---|
| нем. Haus der Kunst | |
| |
| 48°08′39″ с. ш. 11°35′09″ в. д. | |
| Тип | художественный музей |
| Страна | |
| Местоположение | Мюнхен |
| Архитектурный стиль | архитектура нацистской Германии |
| Архитектор | Пауль Людвиг Троост |
| Основатель | Адольф Гитлер |
| Дата основания | 1937 |
| Сайт |
hausderkunst.de/en (англ.) hausderkunst.de (нем.) |

Дом искусства (нем. Haus der Kunst, первоначально «Дом немецкого искусства» (нем. Haus der Deutschen Kunst)) — выставочное здание в Мюнхене по улице Принцрегентенштрассе (Prinzregentenstraße), примыкающее к Английскому саду. Построено в 1937 году по проекту Пауля Людвига Трооста при личном участии Адольфа Гитлера.
История
Здание Дома искусства в стиле монументального неоклассицизма построено вместо сгоревшего в 1931 году знаменитого Стеклянного дворца в Старом ботаническом саду. Церемония закладки первого камня прошла 15 октября 1933 года. Открытие состоялось 18 июля 1937 года первой Большой немецкой художественной выставкой во второй «День немецкого искусства» монументальным парадом под девизом «2000 лет немецкой культуры». В своей речи Гитлер говорил не об искусстве, которое должен демонстрировать дом, а скорее об искусстве, которое он отвергал и против которого хотел вести «беспощадную войну очищения». Первым директором был Карл Кольб. На следующий день в здании галереи Хофгартена (ныне Немецкий музей театра) открылась передвижная антимодернистская выставка «Дегенеративное искусство».

До 1944 года в Доме немецкого искусства проходила ежегодная Большая немецкая художественная выставка. Хотя этот дом претендовал на статус храма «немецкого (то есть национал-социалистического) искусства», его концепция с самого начала была построена на коммерческой основе: в здании были предусмотрены предприятия общественного питания: до сих пор функционирующий «Золотой бар», пивная, в которой сейчас находится знаменитая гламурная дискотека «Р1», а также центральный ресторан. На всех выставках осуществлялась продажа экспонатов, а главным покупателем выступал фюрер, снискавший тем самым славу мецената.
Благодаря инфраструктуре общественного питания во время послевоенной американской оккупации здание использовалось как офицерский клуб. По некоторым сведениям, американцы играли в здании в баскетбол, и даже к моменту открытия здания в качестве музея ещё была заметна соответствующая разметка на полу.
С 1949 года в Доме искусства проводится ежегодная мюнхенская Большая художественная выставка. В 2007 году на выставке в Доме искусства демонстрировались более 200 работ 173 художников.
До открытия Пинакотеки современности в западном крыле Дома искусства размещалась Государственная галерея современного искусства, а восточное крыло использовалось для проведения специализированных выставок. В 2003—2004 годах зданию Дома искусства, перестроенному в 1960-е годы, вернули прежний внутренний вид.
Архитектура



Строения и фасады
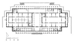
Двухосно-симметричное здание музея в стиле редуцированного неоклассицизма имеет длину 175 м и ширину 50 м в средней части, сужается к западу и востоку за счет ниш застройки. В основе конструкции лежит сплошная решетка из стальных балок. Балки облицованы каменными плитами, поэтому здание выглядит как каменное сооружение. Главный вход находится в середине южного фасада, остальные входы ведут от середины северной стороны в северную галерею и по узким сторонам в боковые флигели. По обеим длинным сторонам расположен 21-осный портик из колоссальных нерифленых колонн, охватывающих всю высоту здания, каждая из которых закрыта угловыми колоннами. Портик на южной стороне фасада на Принцрегентенштрассе изначально имел внешнюю лестницу во всю ширину. В 1971 году в рамках реконструкции улицы она была уменьшена в глубину, а ее среднюю часть снесли. В задней части из-за уклона местности подвал доступен на уровне земли. Оттуда лестница ведет на первый этаж. Общая глубина двух вестибюлей и лестниц составляет 75 метров.
Основание облицовано камнем из карьера Нагельфлу, внешние фасады — известняком из долины Дуная под Кельхаймом. Лестницы и внешние полы выполнены из гранита. Перед зданием с 1970-х годов растут липы, традиционные для аллей Мюнхена.
Внутреннее устройство
Внутри Дом искусства также имеет симметричную структуру. Средний зал, первоначально известный как «Зал почёта», примыкает к центральному входу и ведёт в северную галерею. Слева и справа от него находится большой вытянутый выставочный зал, окружённый рядом комнат поменьше. Эти помещения, составляющие центральную часть, достигают полной высоты здания. С южной стороны простираются административные помещения, с северной — бывший ресторан, ныне северная галерея. Только эти части здания двухэтажные, на верхнем этаже расположены выставочные залы. Залы в полную высоту и выставочные залы на верхнем этаже освещались мансардными окнами. Общая выставочная площадь составляет 5040 м². Выставочные залы на первом этаже можно разделить или распределить по желанию, чтобы провести несколько выставок одновременно. С самого начала в здании были несколько лифтов, сложная система отопления и кондиционирования, а также бомбоубежище, которое с 2011 года также используется для проведения выставок.
Внутри полы выложены зольнхофенским известняком, дверные коробки и плинтусы выполнены из юрского мрамора . В центральном зале полы, лестницы и облицовка выполнены из заальбургского мрамора, двери и плинтусы — из мрамора Тегернзе.
В восточном конце северной галереи в бывшем банкетном зале художников находится Золотой бар. В 2004 году были раскрыты настенные росписи Карла Хайнца Даллингера. На фоне сусального золота изображены карты, а иногда экзотические мотивы о происхождении алкогольных напитков и деликатесов. Клуб P1 использует помещение бывшей пивной в подвале западного флигеля.
Проектирование и строительство
После того как в 1931 году сгорел Стеклянный дворец в Старом ботаническом саду, объединения художников Мюнхена Мюнхенское товарищество художников, Мюнхенский сецессион и Мюнхенский новый сецессион основали Мюнхенское управление выставками, чтобы построить новый выставочный дом для своей ежегодной художественной выставки и других мероприятий. В 1931 году они поручили мюнхенскому профессору архитектуры Адольфу Абелю построить на том же месте новое здание. Став рейхсканцлером, Гитлер отказался от проекта непосредственно перед запланированным началом строительства весной 1933 года. Он лично дал заказ на новое планирование Паулю Людвигу Троосту, который уже перестроил штаб-квартиру НСДАП в Мюнхене, коричневый дом. Строительной площади в старом ботаническом саду было недостаточно для монументальных планов Гитлера. В качестве нового места он выбрал южный вход в Английский сад.
Первоначально Гитлер хотел построить там «партийный форум», который состоял бы из Дома немецкого искусства, музея современной истории и дома партийного управляющего, который располагался бы вокруг представительной площади. Троост отверг эти планы, потому что их требования к пространству слишком сильно посягали бы на Английский сад. На раннем этапе карьеры Гитлера ещё убеждали технические аргументы, и он ограничил проект Домом немецкого искусства. В соответствии с нацистской культурной политикой это здание должно было стать ключевым выставочным центром Германского рейха. Кунстхалле, запланированный в Берлине на 1936 год, однозначно не должен был конкурировать с Домом немецкого искусства. Проект был также нацелен на восстановление роли Мюнхена как ведущего художественного города Германии, что нашло отражение в почётном звании «Столица немецкого искусства». Планировка была расширена и затронула прилегающую территорию. Принцрегентенштрассе, которая изначально была «заложена с живописной точки зрения», стала парадной улицей, застройка на южной стороне Фон-дер-Танн-штрассе в Финанцгартене была снесена, а на северной стороне фасад в стиле модерн Ателье Эльвиры пришлось упростить. Фон-дер-Танн-штрассе также была расширена и превращена в парадную дорогу.
Для финансирования гауляйтер НСДАП Адольф Вагнер организовал инициативу баварских и немецких промышленников с призывом передать здание в дар Гитлеру. Первые взносы он передал Гитлеру в день его рождения 20 апреля 1933 года. Для управления домом было основано учреждение публичного права. Учредительное собрание состоялось в июне 1933 года, а 14 июля 1933 года был официально принят устав учреждения Дом немецкого искусства (Новый Стеклянный дворец).
Согласно мемориальной доске, установленной после открытия, 18 донорами первого камня были: Герман Шмитц (IG Farben), Август фон Финк (Merck, Fink & Co), Роберт Бош (Boschwerke), Фридрих Флик (Mitteldeutsche Stahlwerke), Адольф Хойзер. (IG Farben), Август Дин (Deutsches Kalisyndikat), Теодор Фейз (Kaliwerke Friedrichshall), Фриц Рехберг (семейная компания текстильной промышленности и несколько наблюдательных советов, например Commerzbank), Якоб Хасслахер (Vereinigte Stahlwerke), Пауль Мюллер (Dynamit Nobel AG),Густав Крупп фон Болен и Хальбах (Kruppwerke), Вильгельм фон Опель (Adam Opel AG), Людвиг Розелиус (Kaffee Handels Aktiengesellschaft), August Rosterg (Wintershall AG), Willy Sachs (Fichtel & Sachs AG) , Карл Фридрих фон Сименс (Siemens), Людвиг Шуон (BASF), Филипп Реемтсма (сигаретные фабрики Reemtsma). Вместе они собрали три из первоначально запланированных пяти млн рейхсмарок, а город Мюнхен внёс ещё 400 тыс. марок. Строительная отрасль и рейхсбан сделали пожертвования натурой. Большое количество мелких и средних денежных и материальных пожертвований увеличило общую сумму средств, собранных сторонниками, до чуть более 10 млн. Поскольку в итоге стоимость строительства выросла до 12 млн рейхсмарок, пожертвований оказалось недостаточно. Поэтому от Немецкого общества общественных работ была получена беспроцентная ссуда, но условия не были выполнены.
15 октября 1933 года Гитлер заложил первый камень в фундамент нового Дома немецкого искусства. После неожиданной смерти Трооста в 1934 году строительство продолжил его сотрудник Леонхард Галь при участии вдовы Герди Троост.
В 1938 году Гитлер хотел построить напротив Дома немецкого искусства Дом немецкой архитектуры. Здесь бы выставлялись архитектура и прикладное искусство. Здание должно было представлять собой упрощённую версию Дома немецкого искусства без наружной лестницы с колоннадами, интегрированными в линию здания. Проект не вышел за рамки предварительных эскизов.
Примечания
- ↑ archINFORM (нем.) — 1994.
