Корнелиева дорога

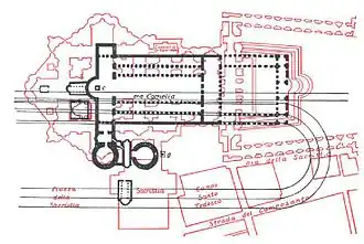
Прежний общепринятый план топографии Ватикана. Нынче считается, что расположение Корнелиевой дороги и цирка Нерона на этом плане нанесено неаккуратно

Корнелиева дорога (лат.: Via Cornelia) — древняя римская дорога, проходившая, предположительно, с востока на запад вдоль северной стены цирка Нерона там, где ныне располагается южная стена базилики святого Петра. Расположение тесно связано с Аврелиевой дорогой и Via Triumphalis.[1]

Примечания

  1. O'Callaghan, Roger T. "Recent Excavations under the Vatican Crypts." The Biblical Archaeologist, Vol. 12, No.1.(Feb., 1949)