Котёл Стерлинга
.jpg)
Котёл Стерлинга (англ. Stirling boiler) — ранняя конструкция водотрубного котла для получения пара в больших стационарных установках. Широко использовался на рубеже XIX—XX веков, но ныне[когда?] применяется редко[прояснить].
Конструкция
.jpg)
.jpg)
.jpg)
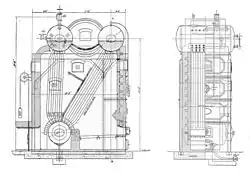
Котлы Стерлинга — крупногабаритные водотрубные котлы, пригодные для стационарных установок, но неприменимые в подвижных, за исключением крупных судов с силовой установкой относительно невысокой мощности. Котёл состоит из кирпичной камеры, в которой горячие газы движутся волнообразно, проходя среди многочисленных водяных труб, которые соединяют несколько барабанов.
Система Стерлинга среди водотрубных котлов считается старой, «широкотрубной»[1], с диаметром труб около 3¼ дюймов (83 мм).[2] Трубы располагаются почти вертикально между несколькими горизонтально расположенными паровыми (сверху) и водяными (снизу) барабанами. По количеству барабанов котлы Стерлинга разделяются на:
- V-образные трёхбарабанные, используются в маломощных установках и в качестве котлов-утилизаторов побочного тепла различных технических процессов;
- B-образные четырёхбарабанные, наиболее широко распространённые, сбалансированные по соотношению эффективности, мощности и стоимости[2], и
- W-образные пятибарабанные конструкции, наиболее мощные и эффективные, используются на больших установках или при необходимости получить как можно больше пара при дефиците топлива.
Количество групп труб, таким образом, на единицу меньше числа барабанов — 2, 3 и 4 соответственно.
Поток горячих газов из камеры сгорания проходит по очереди через каждую группу труб, причём стенки из огнеупорных кирпичей направляют поток газа в каждой группе сначала вверх, а потом вниз. Необычно, что газы движутся вдоль труб, а не поперёк.
Циркуляция воды, как вверх, так и вниз, происходит сквозь нагревательные трубы, поэтому отдельной опускной трубы не требуется. Паровые барабаны (а в пятибарабанных конструкциях и водяные) соединены отрезками горизонтальных труб для циркуляции.
Трубы используются стальные бесшовные, прямые с незначительно изогнутыми концами.[1] Корпус котла кирпичный, но паровые барабаны опираются на него через отдельную раму, чтобы позволить металлу свободно расширяться при нагревании. Водяные барабаны висят на нагревательных трубах, их изогнутые концы входят в барабаны по радиусу, что не только упрощает их крепление и герметизацию, но и также, по представлениям того времени, позволяет системе расширяться.
Котлы Стерлинга могут быть весьма больших размеров, причём обычно сохраняют высоту и просто наращивают по необходимости их ширину.[2]
Пароперегреватель
Котёл оснащался пароперегревателем в виде змеевика в верхней части между первыми двумя паровыми барабанами, перегородки направляют горячие газы прежде всего в перегреватель.
Топлива
Котёл может использовать самые разные виды топлива, хотя изначально был сконструирован под отопление углем. Возможно сжигание дров и разных органических остатков, причём большая площадь колосниковой решётки допускает весьма низкокачественное топливо. При необходимости, устанавливается автоматический цепной податчик.
Трёхбарабанная конструкция используется также как котёл-утилизатор тепла горячих газов сталелитейного и других производств[2].
Циркуляция
Уровень воды поддерживается так, чтобы паровые барабаны были наполнены до середины, и трубы работали «захлебнувшись», верхними концами под водой. Поскольку продукты сгорания проходят через каждую группу труб по очереди, последние группы обогреваются газами значительно меньшей температуры, из-за чего термосифонная циркуляция в котле Стерлинга весьма эффективна[1], особенно в первых, более горячих кругах. В первой группе вода поднимается, а в последних — опускается. Круг замыкается трубами, соединяющими верхние барабаны[2].
В B-образных (четырёхбарабанных) котлах в средней группе могут образовываться как восходящий, так и нисходящий потоки из двух малых кругов циркуляции.[2]
Питание
Питательная вода подаётся в последний паровой барабан и самостоятельно распределяется в котле, опускаясь по задней группе труб в последний водяной барабан[1]. Осадки (обычно называемые шламами), таким образом, задерживаются в последнем водяном барабане (который нередко и называют шламовым), и не попадают в самые горячие трубы, отчего в них образуется меньше накипи, затрудняющей теплообмен и вообще вредящей котлу[2].
Морские котлы Стерлинга
Четырёхбарабанные котлы Стерлинга использовались в силовых установках крупных морских судов[2]. При этом кирпичный корпус котла заменялся стальным, футерованным огнеупорным кирпичом, диаметр труб уменьшают до 2 дюйма (50,8 мм)—21⁄2 дюйма (63,5 мм), а для того, чтобы избежать нарушения циркуляции в котле при качке, барабаны располагают поперёк корпуса судна и снабжают внутренними перегородками.
Преимущества
Основных преимуществ котла Стерлинга три:
- Многократная циркуляция воды сквозь множество труб делает КПД котла довольно высоким[1].
- Размеры колосниковой решётки практически не зависят от размеров водотрубной системы, что позволяет легко увеличивать её площадь для сжигания низкокачественных видов топлива. Там, где производственный процесс требует пара и даёт горючие отходы, котёл Стерлинга оказывается весьма полезен. Например, на сахарном производстве в них утилизируют багассу (отходы сахарного тростника), в бумажном — древесную кору, до Второй мировой войны в котлах Стерлинга сжигали бытовой мусор для производства электроэнергии, но позднее ужесточившиеся нормативы на содержание вредных веществ в выбросах сделали это невозможным.
- Наконец, полная доступность всех частей котла делает его обслуживание и ремонт весьма лёгкими. Можно заменить любую трубу, не трогая остальных[2].
Недостатки
- Низкая мощность относительно котлов того же размера, но других систем[2].
- Большой диаметр труб не позволяет работать при больших давлениях[2]. Рабочее давление 150 фунт-сил/кв. дюйм (10 кгс/см²) достаточно для компаундной паровой машины, но для турбин мало.
- Низкая температура пароперегревателя, поскольку котёл рассчитан на высокий КПД водотрубной системы[2]. Когда техника от поршневых паровых машин шагнула к турбинам, это стало значимым недостатком.
Примечания
Ссылки
- Larry Tarvin. The Stirling Boiler. The American Society of Power Engineers. Дата обращения: 20 февраля 2015.