Санти-Куаттро-Коронати
| Санти-Куаттро-Коронати | |
|---|---|
| Santi Quattro Coronati | |
![]() Восточный фасад комплекса с башней Льва IV (IX век) | |
| 41°53′18″ с. ш. 12°29′54″ в. д. | |
| Тип | Монастырь |
| Страна |
|
| Рим | холм Целий |
| Конфессия | католицизм |
| Епархия | Римская епархия |
| Тип | женский |
| Первое упоминание | 595 год |
| Дата основания | XII век |
| Основные даты | |
| Здания | |
| Капелла Санта-Барбара • Капелла Сан-Сильвестро | |
| Реликвии и святыни | мощи Четырех увенчанных святых, глава святого Себастьяна |
| Статус | титулярная церковь, монастырь августинок, монастырь Маленьких сестёр Агнца |
| Состояние | действующий |
| Сайт | santiquattrocoronati.org |
![]() |
|
Санти-Куаттро-Коронати (итал. La Basilica dei Santi Quattro Coronati — Базилика Четырёх коронованных святых) — монастырский комплекс на холме Целий в Риме. Включает в себя титулярную базилику в честь Четырёх коронованных святых, два женских монастыря (августинок и маленьких сестёр Агнца). Монастырская церковь в нынешнем виде существует с начала XII века, но содержит многочисленные остатки предыдущей, построенной в IX веке. Кроме этого, в состав комплекса входят Календарный и Готический залы и капелла Сан-Сильвестро с циклами фресок XIII века.
История
Титульные святые
О почитании Четырёх увенчанных мучеников на холме Целий известно из Мартиролога Иеронима (начало V века). Существует несколько легенд об этих святых:
- пятеро сирмийских мучеников-скульпторов, отказавшиеся изготовить статую Асклепия и утопленные в свинцовых ящиках в Саве,
- четверо римских соддат, отказавшиеся принести жертву Асклепию и забитые насмерть бичами со свинцовыми наконечниками,
- четверо мучеников, почитавшихся в катакомбах Альбано; житие неизвестно.
Каким образом почитание трёх различных групп мучеников слилось в единый культ Четырёх увенчанных мучеников, даже их точное количество и имена остаются предметом дискуссий. Папа Лев IV (847—855), до своего избрания бывший пресвитером Санти-Куаттро-Коронати, заново отстроил «свою» базилику и, по сообщениям Liber Pontificalis, перенёс сюда мощи всех трёх групп мучеников. В средние века день памяти этих святых перемещался в интервале между 7 и 9 ноября, в итоге праздник был установлен на 8 ноября.
Предыстория
Нынешняя улица виа Санти-Куаттро-Коронати уверенно ассоциируется современными историками с античной виа Тускулана. В этом месте, по сообщениям Цицерона, должен был находиться небольшой храм Дианы, заменённый затем на большой городской дом Луция Кальпурния Пизона Цезонина, тестя Юлия Цезаря. Археологических подтверждений этому пока не обнаружено.
Каталог начала IV века упоминает о 127 частных домах на холме Целий, в числе которых находились виллы сенаторов и императорских родственников. Санти-Куаттро-Коронати занимает место одной из таких резиденций. Под зданиями монастырского комплекса обнаружены криптопортик и несколько примыкавших к нему комнат (I-II века новой эры), а также большой зал 42х15 метра (IV век). Конфигурация нынешней базилики и примыкающих зданий «унаследована» от этого здания IV века. Предполагается, что именно это здание и было первой «титулярной церковью» (titulus), возникшей здесь.
Первое упоминание о почитании Четырёх увенчанных мучеников на холме Целий встречается в Мартирологе Иеронима (начало V века). Именно о базилике Санти-Куаттро-Коронати впервые говорится в актах римского синода 595 года при папе Григории Великом: под этими актами подписался Fortunatus presbyter tituli sanctorum quattuor Coronatorum. Почти двухвековой разрыв между сообщениями Мартиролога Иеронима и актами Григория Великого объясняется историками тем, что в этот временной промежуток базилика ещё называлась по имени прежней владелицы поместья Эмилианы — titulus Aemilianae, которая появляется в документах с 499 года. Раскопки 2002-2004 года в монастырском клуатре вскрыли четверть (остальные три четверти находятся под существующими зданиями и не могут быть исследованы без ущерба для зданий монастыря) баптистерия. По размеру баптистерий, обнаруженный в Санти-Куаттро-Коронати, уступает в Риме только баптистерию при Латеранском соборе.
Liber Pontificalis упоминает о том, что базилика Санти-Куаттро-Коронати ремонтировалась дважды: при Гонории I и Адриане I (772-795). Археологических подтверждений этих работ не обнаружено. Скорее всего, перестроенная этими папами титулярная базилика была снесена и построена заново при Льве IV (847-855).
Базилика Льва IV
До своего избрания на кафедру Лев IV (847-855) был пресвитером Санти-Куаттро-Коронати и, став папой, продолжал заботиться о «своей» базилике и заново отстроил её в стиле Каролингского возрождения.
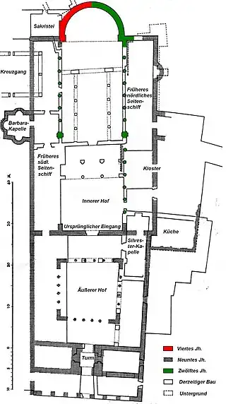
Собственно базилика Льва IV была значительно больше современной: её размеры составляли 55х30 метров. По длине постройка Льва IV соответствует современной базилике и находящемуся перед ней второму внутреннему двору, то есть она была почти в два раза длиннее нынешней церкви. Главный неф по ширине соответствовал нынешней трёхнефной базилике (то есть три нефа современного здания «уместились» в одном главном нефе постройки IX века); правый (северный) неф впоследствии стал трапезной, приёмной и Календарным залом августинского монастыря; от левого (южного) нефа сохранилось очень немного, он примерно соответствует южному крылу второго внутреннего двора и северной галерее клуатра. Здание завершалось на западе обширной апсидой (размеры соответствуют нынешней), а в четырёх его углах были пристроены отдельные капеллы, из которых сохранилась только капелла Санта-Барбара (из-за последующего уменьшения размеров базилики эта капелла сейчас вообще не соединяется с храмом). Главный неф был ярко освещен: по три окна было сооружено на фасаде и в апсиде, ещё ряд окон были прорублены над боковыми нефами.
Перед базиликой был обустроен большой двор с квадропотриком, примерно соответствующий нынешнему первому внутреннему двору. Над входом в комплекс, то есть над восточной стороной квадропортика, была сооружена башня, сохранившаяся до сих пор (башня Льва IV). К северу от базилики Льва IV найдены следы трапециевидного в плане здания — возможной резиденции капитула. К юго-западному углу храма примыкало небольшое прямоугольное помещение — предполагаемая ризница. Найденные во время раскопок ступени, ведущие от базилики к баптистерию, показывают, что в IX веке он ещё использовался.
При строительстве были использованы остатки прежнего titulus, то есть приспособленной для богослужений античной виллы. Стены базилики Льва IV были сложены из кирпичей и туфовых блоков, взятых, по всей видимости, из многочисленных античных развалин. Стены были оштукатурены и покрыты фресками, для украшения были использованы и различные античные скульптурные элементы.
Предположительно, уже при Льве IV при базилике существовала небольшая монашеская община. Впервые о её существовании письменно упоминается в 975 году: папа Бенедикт VII поручил руководство общиной прибывшему в Рим Теодерику, архиепископу Трира.
Базилика Льва IV была разрушена во время норманнского пожара Рима 1084 года. Тем не менее, напоминает о ней достаточно много. Прежде всего, сама конфигурация современного комплекса практически повторяет контуры строений IX века. Башня Льва IV; апсида; колонны, отделявшие главный неф от боковых; в отдельных местах кладка до второго ряда окон сохранились.
Базилика Пасхалия II
Базилика Льва IV была разрушена во время норманнского пожара Рима 1084 года: обрушились кровля, верхний уровень стен нефа и (частично) стены апсиды. Последовавшие за катастрофой 1084 года события (борьба пап-преемников Григория VII с антипапами, резкое уменьшение населения Рима и «исход» жителей из Латерана) привели к тому, что восстановлением Санти-Куаттро-Коронати, как и близлежащей и также дотла сожжённой Сан-Клементе, смог заняться только Пасхалий II (1099-1118).
Работы начались с апсиды, которую отстроили в первоначальном варианте, но затем были прерваны. В связи с тем, что эта часть Рима практически обезлюдела, восстанавливать базилику в прежних грандиозных размерах было бессмысленно. В результате было принято решение о постройке нового храма в гораздо меньших размерах: новый восточный фасад церкви отрезал примерно половину прежнего нефа, а три нефа новой базилики уместились в главном нефе прежнего строения. «Отрезанная» часть прежнего восточного нефа была обнесена квадропортиком, образовав, тем самым, современный второй внутренний двор. Бывшие правый и левый нефы стали частью формирующегося бенедиктинского монастыря. Для того, чтобы обеспечить нужный угол ската кровли, наружные стены новых боковых нефов были устроены гораздо ниже высоты стен прежнего главного нефа. Для скрытия этого несоответствия по высоте боковые нефы были «накрыты» женскими галереями (матронеум), превратившимися уже в XVI веке в закрытые для посторонних монастырские хоры. О таком значительном уменьшении размеров базилики напоминает отстроенная в прежнем виде апсида, своими значительными размерами резко контрастирующая с укороченными и суженными нефами.
В своём новом виде Санти-Куаттро-Коронати была освящена 20 января 1116 года.
Бенедиктинский монастырь и кардинальский дворец
Поскольку вновь отстроенная Санти-Куаттро-Коронати находилась в обезлюдевшей части Рима, базилика перестала быть приходским храмом и была передана Пасхалием II бенедиктинцам. Монахи стали обживать прежний левый (южный) неф старой базилики. В течение первой половины XII века строения монастыря приобрели типичный для обителей этой эпохи вид: братские корпуса, устроенные по периметру прямоугольного клуатра. Ради этих построек монахи пожертвовали баптистерием, уже ненужным, так как храм перестал быть приходским.
В 1138 году Санти-Куаттро-Коронати стал подворьем богатого и влиятельного бенедиктинского аббатства Санта-Кроче-ди-Сассовиво (расположен близ Фолиньо в Умбрии). В период своего расцвета материнское аббатство владело в Риме несколькими зданиями, использовавшимися в качестве гостиниц для паломников, а в Санти-Куаттро-Коронати обитали несколько десятков монахов а также, во время своего пребывания в Риме, аббаты. В первой половине XIII века одновременно в Санта-Кроче-ди-Сассовиво и Санти-Куаттро-Коронати были построены сохранившиеся доныне клуатры в стиле космати.
Стратегическое положение Санти-Куаттро-Коронати на холме над via Maior, соединяющей Латеранскую и Ватиканскую базилики, стало причиной превращения комплекса в укреплённую крепость. На месте прежнего правого нефа и предполагаемого капитула ранней базилики был построен дворец кардинала Стефано Конти (умер в 1254 году), племянника Иннокентия III, ставшего в 1245 году наместником Рима после бегства во Францию Иннокентия IV. Дворец представлял собой укреплённый замок, содержавший, помимо личных покоев и комнат прислуги, кухню, пекарню, винные погреба, цистерны для сбора воды. Самая значительная часть дворца — Большая башня — поднимается над нынешним уровнем улицы виа Санти-Куаттро-Коронати на высоту 26 метров. В Большой башне находятся Календарный и Готический зал, содержащие фрески XIII века, и самую известную часть комплекса — капеллу Сан-Сильвестро с фресками, иллюстрирующими историю Константинова дара. После смерти Стефано Конти дворец принадлежал Оттавиано дельи Убальдини, Бенедетто Каэтани и его племяннику Франческо, Арнольдо де Виа (племяннику Иоанна XXII). В 1265 году во дворце жил Карл I Анжуйский, в 1267 году — сенатор Генрих Кастильский.
Политические неурядицы в Италии (борьба гвельфов и гибеллинов, Авиньонское пленение пап) привели к упадку монастыря Санта-Кроче-ди-Сассовиво, его римского подворья, а также и кардинальского дворца. Так называемый Туринский каталог (1313-1339), перечисляющий римские церкви и монастыри, упоминает всего лишь о десяти насельниках Санти-Куаттро-Коронати. В 1340 году монахи и титулярный кардинал Гийом Кур были участниками судебного процесса о принадлежности кардинальского дворца. Бенедикт XII вынес решение в пользу кардинала, но последний так и не поселился здесь. Землетрясение 1348 года серьёзно повредило все здания комплекса.
Работы по восстановлению пришедших в упадок зданий начались только после возвращения в Рим папы Мартина V при титулярном кардинале Альфонсо Каррильо де Акунья (1423-1431). На мемориальной доске в первом внутреннем дворе написано: «всё, что вы видите вокруг, лежало на земле в руинах, заросшее вербеной, плющом и кустарником». В восстановленном дворце останавливался в 1433 году император Сигизмунд. Папа Каликст III (1455-1458), бывший до своего избрания титулярным кардиналом Санти-Куаттро-Коронати, пожертвовал значительные средства на дальнейшую реставрацию комплекса. Опустевший монастырь был передан камальдулам, но и они вскоре покинули его из-за нездорового климата. Окончательный переезд папского двора из Латерана в Ватикан стал причиной нового запустения Санти-Куаттро-Коронати.
Монастырь августинок и приют для девочек-сирот

В 1536 году по призыву Игнатия Лойолы в Риме было образовано Братство святой Марии — воспитательницы сирот (итал. S. Maria della Visitazione degli Orfani) с целью поддержки и воспитания сирот. Приют для девочек был устроен этим Братством в доме около Пьяцца Пьетра, а в 1548 году при нём создан монастырь августинок, посвятивших себя воспитанию сирот. Размещение монастыря и приюта в центре города было неудобным, и в 1562 году Пий IV и титулярный кардинал Санти-Куаттро-Коронати Энрике Португальский передали августинкам и сиротам пустующий комплекс на холме Целий. После проведения ремонтных работ 12 марта 1564 года монастырь августинок и приют для девочек-сирот переехали в Санти-Куаттро-Коронати.
Монастырь и приют существовали исключительно на пожертвования частных лиц и титулярных кардиналов базилики и никогда не были богатыми. Как следствие, все перестройки этого периода были связаны с приспособлением имеющихся помещений под нужды приюта. Бывшие залы кардинальского дворца были разделены перегородками на комнатки; украшавшие их фрески закрывались свежей штукатуркой (таковой была судьба Готического зала, фрески которого были заново обнаружены в 1995 году); над бывшим правым нефом прежней базилики надстроили дормиторий; северная и восточная часть квадропортика первого внутреннего двора были также превращены в дормитории. В 1672-1673 годах к южной стороне комплекса было пристроено новое здание, в котором также находились спальни воспитанниц (сейчас здесь монастырь маленьких сестер Агнца).
Кроме того, насельницы монастыря и их питомицы вели замкнутый образ жизни и не показывались на публике, что делало необходимых изолировать от посторонних глаз занимаемые ими помещения. В частности, арки женских галерей в базилике были заложены, и оставлены лишь маленькие окошки; над портиком восточного фасада базилики была надстроена еще одна галерея, которую затем расширили вдвое и также превратили в закрытые для посторонних взоров хоры (после 1628 года); внешние окна северного и восточного фасадов комплекса были уменьшены и забраны решётками.
Работы в базилике проводились на средства титулярных кардиналов. Генрих Португальский устроил новый кессонированный потолок, украшенный гербами Ависского дома. В 1621-1624 годах по заказу кардинала Джованни Гарсия Меллини стены апсиды были покрыты циклом фресок на мотив житий Четырёх увенчанных святых (автор — флорентиец Джованни да Сан-Джованни) и перестроена крипта. В крипте, помимо ранее известных двух античных ванн с мощами святых, были обнаружены ещё две ванны. Среди мощей была найдена серебряная ваза с главой святого Себастьяна. В 1632 году следующий титулярный кардинал Джироламо Видони устроил в южном (левом) нефе алтарь в честь святого Себастьяна, в нише за которым была помещена обретённая реликвия.
В приюте одновременно находилось до 150 воспитанниц («рекорд» 1601 года), но в течение XVIII-XIX веков их число постоянно уменьшалось. В 1872 году приют был закрыт итальянским правительством.
Современное состояние

В 1879 году монастырский комплекс был разделён: августинкам была оставлена его западная часть (включая клуатр и бывший кардинальский дворец), а восточная (здания вокруг первого внутреннего двора) была секуляризована. Первоначально в восточной части комплекса был создан лазарет, а с 1910 года здесь существовал интернат для глухонемых. В 1946 году Святой престол выкупил у итальянского правительства секуляризованную в 1879 году восточную часть Санти-Куаттро-Коронати. С 1995 года здесь разместился монастырь Маленьких сестёр Агнца (итал. Piccole sorelle dell*Agnello, одной из ветвей ордена доминиканцев. Таким образом, в настоящее время на территории комплекса находятся два женских монастыря: августинок и Маленьких сестёр Агнца. Из монастырских помещений доступны для посторонних только клуатр, Календарный зал и капелла Сан-Сильвестро.
Церковь Санти-Куаттро-Коронати исторически является титулярной церковью, кардиналом-священником с титулом церкви Четырёх увенчанных мучеников с 28 июня 1991 года, является американский кардинал Роджер Майкл Махони.
Монастырский комплекс, включающий в себя постройки IX-XIII веков, неоднократно исследовался и реставрировался в XX веке:
- в 1908-1916 годах под руководством Антонио Муньоса были отреставрированы с удалением позднейших наслоений базилика Санти-Куаттро-Коронати, башня Льва IV и капелла Сан-Сильвестро;
- в 1957-1964 годах была укреплена апсида базилики и отреставрированы бывший правый неф базилики Льва IV (ныне трапезная августинок) и примыкающая к нему капелла святого Николая;
- в 1995 году были вновь открыты и освобождены от последующих слоёв штукатурки фрески Готического зала;
- в 1999-2004 годах была осуществлена реставрация клуатра, во время которой были открыты остатки баптистерия.
Базилика Санти-Куаттро-Коронати
Современная базилика была построена в 1099-1116 годах и освящена папой Пасхалием II 20 января 1116 года. Церковь была сооружена на месте базилики Льва IV, сгоревшей во время норманнского пожара 1084 года. Воссоздана в прежнем виде была только апсида, после чего Пасхалий II был вынужден уменьшить размеры новой базилики против прежней как по длине, так и по ширине. Новая церковь заняла западную половину главного нефа первоначального храма (на месте восточной половины был устроен второй внутренний двор), а все три нефа новой базилики были умещены в пределах прежнего главного нефа. Этим искусственным «сжатием» объясняется ряд архитектурных особенностей современной церкви Санти-Куаттро-Коронати.
Фасад
Современный фасад базилики был сооружён при Пасхалии II, а затем реконструирован в 1628 году. Первоначально здесь находился одинарный портик, поверх которого шла крытая галерея. Портик состоял из трёх арок, которые опирались на пару ионических колонн (в центре) и два пилона. Верхняя крытая галерея представляла собой череду таких же трёх арок. После устройства в Санти-Куаттро-Коронати августинского монастыря и приюта для девочек-сирот арки галереи были заложены кирпичом, а сама галерея, таким образом, превратилась в закрытые для постороннего взора хоры. Так как число воспитанниц увеличивалось, хоры пришлось увеличить. Для этого в 1628 году портик был увеличен в глубину в два раза: теперь здесь стало четыре колонны и четыре усиленных пилона, а пространство между ними было перерыто крестовыми сводами, над которыми и расположены хоры. Над входной дверью в базилику находится плохо сохранившаяся фреска XVII века с изображением титульных святых и поклоняющихся им августинок и их воспитанниц.
Нефы и галереи
Трёхнефная базилика имеет размеры 35 × 15 метров (предыдущая церковь — 55 × 30 м), главная ось её совпадает с линией запад-восток, с апсидой, ориентированной на запад. Главный неф отделён от каждого из боковых нефов четырьмя коринфскими колоннами, возможно взятыми из развалин предыдущего храма. Первоначально кровля в храме была двускатной, и для обеспечения нужного угла ската боковые нефы были выполнены гораздо более низкими, чем главный. Для скрытия этой разницы в высоте поверх боковых нефов были устроены крытые галереи — матронеум. Третья галерея находилась над входом в базилику (восточная стена). Из-за того, что августинки и их воспитанницы должны были присутствовать на богослужении, оставаясь невидимыми для мирян, в XVII веке арки галерей были заложены, и в них оставлены только маленькие зарешеченные окна. После закрытия приюта нужда в обширных хорах отпала, и во время реставрации 1908—1914 годов Муньос восстановил первоначальный вид северной и южной галерей.
Базилика Льва IV была ярко естественно освещена: по три больших окна находились в апсиде и в восточной стене, целый ряд окон располагался в северной и южной стенах. При перестройке Пасхалием II из-за устройства матронеума боковыми окнами пожертвовали, а расширение портика и устройство хоров на восточной стене базилики лишило храм естественного освещения и с востока. В результате в современной базилике ярко освещена только апсида, а нефы погружены в полумрак.
В базилике (в нефах и апсиде) сохранился оригинальный пол XII века в стиле космати. Наиболее интересными являются мраморные инкрустации пола главного нефа: по оси размещена серия кругов (rotae), большой круг в центре нефа выполнен из порфира и помещён в квадрат, углы которого образованы порфировыми кругами меньшего размера. Оригинальный потолок, напротив, не сохранился: в 1547—1580 годах он был заменён деревянным кессонированным, в центре которого помещён герб титулярного кардинала Генриха Португальского из Ависской королевской династии.
В Средние века стены базилики были украшены вотивными фресками, но в 1673 году они были покрыты новой штукатуркой. Часть из них утеряна (две известны по средневековым гравюрам: Распятие и Мадонна с ангелами, заказчиком обеих фресок была некая Divitia), некоторые пострадали при сооружении боковых алтарей, но значительная часть была обнаружена Муньосом:
- От входа справа, по восточной и далее по северной стене расположены следующие фрески (уверенно датируются XIV веком, приписываются мастерам Сиенской школы, имеют параллели с фресками монастыря Субиако);
- Святой Антоний с двумя святыми; одна из них изображена с зубчатым колесом и поэтому обычно идентифицируется с Екатериной Александрийской;
- Пьета с предстоящими апостолами Петром и Павлом и двумя ангелами;
- Двое святых: от фигуры первого осталась только нижняя половина, второй изображён с собственной содранной кожей, свисающей с плеча, и идентифицируется как апостол Варфоломей;
- Неизвестный святой епископ и святой Бенедикт с предстоящим монахом-бенедиктинцем
- Мученики Стефан и Лаврентий
- От входа слева, по восточной и южной стенам расположены следующие фрески (уверенно датируется серединой XIII века только фреска с беседующими монахами, остальные очень плохо сохранились и, к тому же, переписывались в XVII веке):
- Неизвестный святой папа (возможно, Григорий Великий);
- Два беседующих монаха, имя правого подписано: MAG(ister) RAINALD(us);
- Святой Августин с тремя неизвестными святыми;
- Сцена мученичества (святой не идентифицируется).
Пьета с апостолами Петром и Павлом. XIV в. Фреска в правом нефе
Неизвестный святой епископ, св. Бенедикт Нурсийский с предстоящим монахом-бенедиктинцем. XIV в. Фреска в правом нефе- Л. Каппони. Табернакль «Четырём коронованным святым c апостолами Петром и Павлом» у левого пилона. Деталь
Помимо главного алтаря в апсиде, в базилике есть пять алтарей:
- Середина правого (северного) нефа: алтарь Рождества Христова(XVI век) с алтарным образом «Рождество Христово» (около 1585 года, неизвестный художник школы Цуккаро); на этом алтаре для постоянного поклонения выставлялись Святые дары
- Правый пилон: алтарь Распятия (ранее святого Лаврентия) воздвигнут титулярным кардиналом Лоренцо Пуччи (1513-1524); за алтарём — фреска «Распятие Христово с предстоящими Богородицей, Марией Магдалиной, Иоанном Богословом, мучениками Стефаном и Лаврентием» (неизвестный художник XVII века)
- Левый (южный) неф: алтарь Благовещения (1623-1624 годы); заалтарный образ «Благовещение» (автор Джованни да Сан-Джованни). Над алтарём находится сообщающееся с монастырскими помещениями зарешеченное окно, через которое августинки и их воспитанницы могли видеть выставленные для поклонения на противоположном алтаре Святые Дары.
- Середина левого нефа: алтарь святого Себастьяна (1632 год); заалтарный образ: «Святой Себастьян у Луцины и Ирины» (автор Джованни Бальоне (1571-1644)). В зарешеченной нише за алтарём помещена глава святого Себастьяна, найденная в 1624 году в крипте.
- Левый пилон: алтарь святых апостолов Петра и Павла (1628 год). За алтарём помещён мраморный с позолотой киворий работы Андреа Бреньо (согласно другим исследователям: Луиджи Каппоне). Киворий украшен гербом папы Иннокентия VIII (1484-1492 годы) и содержит барельефы четырёх ангелов, окружающих золотую дверь с образом Спасителя.
Апсида

Современная апсида Санти-Куаттро-Коронати была построена при Льве IV и частично обрушилась во время норманнского пожара 1084 года. Пасхалий II восстановил её в прежнем виде, но значительно уменьшил ширину базилики. В результате апсида оказалась непропорционально большой по сравнению с самой базиликой, венчая все три нефа. В апсиде сохранились три больших окна, а главный неф в результате последующих перестроек лишился всех окон, так что апсида является единственной ярко освещённой частью храма. В 1621-1624 годах по заказу титулярного кардинала Джованни Гарсия Меллини живописцем Джованни да Сан-Джованни здесь были выполнены яркие фрески, благодаря контрасту света в апсиде и полумрака в нефах притягивающие взор всех находящихся в храме.
Свод апсиды занимает один из шедевров Джованни да Сан-Джованни — огромная фреска «Все святые во славе», имитирующая отсутствующий купол. В центре изображены Бог Отец и Сын, над ними парит Дух Святой в виде голубя; непосредственно под ними — Богородица и Иоанн Креститель. Далее на облаках, собранных концентрические окружности, находятся многочисленные фигуры ангелов и святых. Вся сцена пронизана мягким золотым светом; прекрасно выдержана перспектива: по мере движения от края к центру фигуры плавно уменьшаются, линии расплываются, свет усиливается.

Стены апсиды разделены на части с помощью вертикальных пилястров коринфского ордера. Высота апсиды по сравнению с нефами зрительно усиливается с помощью позолоченных вертикальных линий, пущенных по пилястрам. Все пространство стен заполнено фресками:
- Нижний ряд — история пяти сирмийских мучеников (см. Четыре увенчанных мученика):
- Клавдий обращает Симплицита,
- Епископ Кирилл крестит Симплицита в тюрьме,
- Диоклетиан приказывает мученикам изготовить статую Асклепия,
- Мученики на пути к месту казни,
- Бичевание «скорпионами»,
- Вдова мучителя Лампадия, умершего во время экзекуции, требует казни мучеников,
- Мучеников, замурованных в свинцовые ящики, сбрасывают в Саву.
- Верхний ряд — история четырёх римских мучеников:
- Воины отказываются принести жертву Асклепию,
- Бичевание плетьми со свинцовыми наконечниками,
- Тела мучеников брошены собакам,
- Папа Мильтиад и святой Себастьян погребают мучеников.
Крипта
Крипта была сооружена при Льве IV, сюда, согласно Liber Pontificalis, папа перенёс мощи трёх групп мучеников (сирмийских, римских и альбанских), почитание которых легло в основу культа Четырёх увенчанных мучеников. Крипта имела в плане вид подковы, огибающей комнату под алтарём, а входы в неё находились в боковых нефах. Лев IV поместил мощи в четыре античных ванны и установил последние в комнате под алтарём.
Поскольку после пожара 1084 года базилика была отстроена в меньших размерах, и прежние боковые нефы были из неё исключены, Пасхалий II устроил новые входы в крипту из трансепта, справа и слева от алтаря. Пасхалию II удалось найти только две ванны с мощами, к которым и допускали паломников. В 1624 году кардинал Меллини реконструировал крипту и нашёл в ней недостававшие две ванны, содержащие мощи святых. Доступ в крипту в настоящее время осуществляется только 8 ноября — в день памяти титульных святых.
Внутренние дворы комплекса
Первый внутренний двор и башня Льва IV
Современный первый внутренний двор с окружающими его зданиями, находится на месте, где в IX веке папа Лев IV построил окружённый квадропортиком двор базилики. Единственным сохранившимся зданием этой эпохи является возвышающаяся над восточной стороной двора башня Льва IV — единственная из сохранившихся в Риме башен Каролингского возрождения. Изначально башня была построена над портиком, поэтому для облегчения тяжёлой конструкции был принят ряд инженерных решений: использовался облегчённый пористый кирпич, с каждым этажом башня в плане сужается, а колонны портика, приходящиеся под основанием башни, усилены. Портик под башней был заложен кирпичом только в XIII веке, а в XVII веке над ним был надстроен второй этаж — в помещениях на обоих этажах были устроены дормитории для воспитанниц приюта. Последний этаж башни представляет собой комнату с четырёхарочными оконными проёмами на четыре стороны света, проёмы были замурованы кирпичом в XVII веке, но вновь открыты Муньосом в 1908-1912 годах. В комнате сохранились фрагменты росписи — геометрические и растительные узоры; предполагается, что при Льве IV таким образом были украшены все стены башни.
Квадропортик Льва IV не сохранился: портики северной и западной стороны заново отстроены в XVII веке, а над ними надстроены вторые этажи с дормиториями для воспитанниц; здание на южной стороне двора (там находится монастырь Маленьких сестёр Агнца) относится к XIII веку, а пристройка к нему — к XVII веку. Современный западный портик находится на месте фасада базилики Льва IV, и центральная арка портика представляет собой слегка изменённый портал первой базилики. Дверь в северо-западном углу является отдельным, независимым от монастыря, входом в капеллу Сан-Сильвестро. Поскольку капелла принадлежала одновременно и августинкам, и гильдии резчиков по мрамору, а совладельцы нередко конфликтовали, потребовалось соорудить этот дополнительный вход, чтобы члены гильдии могли посещать капеллу, не проходя через монастырь. Эта же гильдия являлась заказчиком двух фресок, находящихся в портике: Рождество Богородицы и Сретение, предположительно работы тосканца Джованни Батиста Нальдини.
Второй внутренний двор

Второй внутренний двор занимает восточную половину главного нефа базилики Льва IV. При восстановлении базилики Пасхалием II храм был уменьшен в длину в два раза, а на освободившемся месте был обустроен второй внутренний двор с квадропортиком по образцу первого. Все стороны квадропотрика, кроме западного — фасада нынешнего храма, были заложены уже в XIII веке при строительстве кардинальского дворца.
Северная и южная стороны двора являются, таким образом, стенами главного нефа ранней базилики. Об этом напоминают ряд колонн, «встроенных» в стену; следы нижних секций трёх боковых окон; остатки мраморного карниза, прежде делившего стену базилики по высоте пополам; сохранившиеся детали архитрава и капители в юго-восточном углу двора. В бывшей арке между двумя колоннами прежнего главного нефа обустроен современный вход в монастырь августинок, позволяющий посетителям увидеть Календарный зал и капеллу Сан-Сильвестро.
Клуатр
Археологические исследования показали, что первый клуатр Санти-Куаттро-Коронати был построен в первые десятилетия XII века одновременно с возникновением здесь бенедиктинского монастыря. Клуатр был пристроен к южному нефу сгоревшей базилики Льва IV и окружён монастырскими постройками. В 1138 году Санти-Куаттро-Коронати стал подворьем богатого и влиятельного аббатства Санта-Кроче-ди-Сассовиво, и новые владельцы полностью перестроили клуатр в середине XIII века. Очень много схожих черт клуатров Санти-Куаттро-Коронати и Санта-Кроче-ди-Сассовиво позволяют предположить, что их постройка была осуществлена одними и теми же мастерами практически одновременно. Известно, что архитектор последнего — Петр де Мария (Petrus de Maria) — продолжал работы в Сассовиво в 1233 году, так что клуатр Санти-Куаттро-Коронати датируется приблизительно этим же годом. Клуатр выполнен в традиционном для средневековых римских церквей стиле космати.
Клуатр имеет слабо трапециевидную форму 16х23 метра. Собственно открытое пространство двора представляет собой прямоугольник, а все кривизны приходятся на галереи, это позволяет предположить, что строители вписывали идеальный план в существовавшую вокруг застройку. Северная стена северной галереи, она же южная стена церкви, совпадает с прежней стеной между главным и южным боковым нефами базилики Льва IV. Местоположение окончательно разрушенной при устройстве клуатра внешней стены прежней базилики восстанавливается лишь приблизительно. Изначально клуатр был окружён одноэтажными галереями, перекрытыми деревянной кровлей. Во второй половине XVI века галереи получили своды, а затем над ними был надстроен второй этаж. Позже была заложена половина арок, а на рубеже XVIII-XIX веков галереи были разделены перегородками на комнаты. В ходе реставрации 1912-1916 года Антонио Муньос удалил перегородки, вновь открыл все арки, вернув галереям их первоначальный вид.

Клуатр ограждает колоннада из 96 пар тонких колонн и 10 пилонов. Основания и капители колонн украшены резными листьями, расположенный поверх арок кирпичный карниз содержит многочисленные геометрические инкрустации. Первоначально карниз был оштукатурен и покрашен в красный и белый цвета (имитация терракоты и мрамора). Вдоль стен галерей Муньос разместил многочисленные археологические находки: части средневековых алтарей, саркофагов, а также плит из раннехристианских катакомб. В числе последних находится фрагмент принадлежащей папе Дамасию I эпитафии в честь мучеников Петра и Марцеллина. Эта последняя могла быть перенесена из одноимённых катакомб в Санти-Куаттро-Коронати одновременно с мощами Четырёх увенчанных мучеников.
Во время работ в саду клуатра в 2002-2004 годах в юго-восточном углу были найдены остатки баптистерия. Без повреждения существующих строений удалось вскрыть только четверть баптистерия, но и это позволило восстановить его гипотетический вид. Это было круглое строение диаметром 12 метров: в центре находилась купель диаметром 6 метров, вокруг неё шли две галереи. Пол внутренней, более ранней галереи, был выполнен из полихромного мрамора; пол второй, относящейся к IX веку, представлял собой набор различных по форме и цвету мраморных фрагментов, взятых из других зданий. По периметру купели найдены остатки 8 колонн, ранее соединявшихся архитравом. Многочисленные кусочки стекла, возможно, указывают на то, что баптистерий был украшен мозаикой.
Капелла Санта-Барбара
Основная статья — капелла Санта-Барбара
Календарный зал
Календарный зал находится в бывшем кардинальском дворце (северная часть комплекса), в настоящее время через него организован вход в монастырь августинок и капеллу Сан-Сильвестро. Зал был устроен в XIII веке в части прежнего правого (северного) нефа базилики Льва IV. В XVI веке, после создания монастыря августинок и приюта, зал был превращён в монастырскую приёмную: об этом напоминают сохранившееся зарешеченное окно, через которое монахини могли разговаривать с посетителями, и «колесо для найдёнышей». Предположительно между 1235 и 1246 годами при кардинале Стефано Конти стены зала были покрыты циклом фресок. В последующие века многие части фресок были безвозвратно потеряны, в 1632 годы стены были заново ошуткатурены, в 1913 году фрески были вновь открыты Антонио Муньосом.
Фрески зала представляли собой иллюстрированный календарь. Верхний регистр представлял собой 12 персонифицированных изображений 12 месяцев года (до нашего времени сохранились только два). В следующем регистре были представлены развёрнутые свитки с перечислением «столбиком» всех дней соответствующего месяца (частично сохранились). Нижний регистр показывал символически основные крестьянские занятия в текущем месяце (полностью утеряны, до начала 1970-х годов дожила лишь декабрьская фреска с крестьянином, закалывающим свинью). Цикл фресок Календарного зала необычен большим объёмом текста, что роднит его с иллюстрированным манускриптом.
Свитки с днями месяца представляли собой четыре вертикальных колонки:
- первая — числа от 1 до 19, позволявшие вычислять даты полнолуний,
- вторая — буквы от A до G (семь букв), соответствовавшие дням недели, а совместно с предыдущей колонкой позволявшие вычислять дату Пасхи,
- третья — собственно дни месяца,
- четвёртая — неподвижные праздники и память святых, приходящиеся на указанную дату.
В календаре указан день памяти святой Елизаветы Венгерской, канонизированной в 1235 году, но нет упоминания о святом Эдмунде Кентерберийском, прославленном в 1246 году и обычно упоминавшемся в календарях XIII века. Нет здесь и имён святых, прославленных в 1253-1254 годах. Эти данные позволяют отнести исполнение фресок к интервалу не ранее 1235 и не позднее 1253—1254 годов. Под 24 апреля есть указание на кончину Рикардо Конти, отца кардинала Стефано Конти. Поскольку это воспоминание было актуально только для кардинала, именно ему и приписывается заказ этого цикла фресок.
Капелла Сан-Сильвестро
Главная статья — Капелла Сан-Сильвестро
Капелла построена 1246 году, тогда же появились фрески с изображением легенды о святом Сильвестре. Важное политическое значение имела сцена, где император Константин передаёт Сильвестру тиару и тем самым власть.
Готический зал
Общий вид
Готический зал находится на втором этаже Большой башни бывшего кардинальского дворца. Зал был самым большим и красивым помещением дворца: он предназначался для проведения приёмов, званых обедов и судебных заседаний. Зал является памятником очень редкого для Рима готического стиля и содержит многочисленные фрески XIII века.
Готический зал представляет собой в плане прямоугольник 9 × 17,5 метра, арка делит зал поперёк на два равных помещения. Каждая из двух половин зала перекрыта крестовым сводом, опирающимся на мощные консоли; максимальная высота свода 11,5 метра. Своды зала выполнены из бетона, что очень нехарактерно для римского средневековья. К залу примыкало несколько меньших помещений, балкон (позднее обрушился), в связи с чем в стенах несимметрично пробито 6 дверей. В настоящее время зал освещается с помощью трёх больших окон, но в XIII веке разных по форме и величине оконных проёмов было гораздо больше.
Предположительно, все стены зала были покрыты фресками при кардинале Стефано Конти (умер в 1254 году). Впоследствии часть фресок погибла, а все оставшиеся были забелены в XVII веке. Фрески были заново открыты в 1995 году и подверглись реставрации в 2002—2005 годах. Открытие фресок Готического зала стало сенсацией в научном мире: росписи в готическом стиле в Риме вообще очень редки, а в данном случае они ещё и отражают неожиданное возрождение классических античных традиций. До настоящего времени фрески неизвестны широкой публике, так как их нахождение внутри женского монастыря со строгим уставом ограничивает возможность для осмотра.
До настоящего времени практически не дошли росписи нижнего регистра. Предположительно, согласно вкусам того времени, фрески здесь имитировали либо мрамор, либо драпировку тканями. Впрочем, есть и три «сюжетных» сцены: нападение льва на оленя, цветок посреди двух птиц и убийство (возможно, Каин и Авель). Фрески верхних регистров (люнеты и своды), напротив, хорошо сохранились и кратко описываются ниже.
Фрески южной половины
Фрески нижнего регистра стен представляют собой персонифицированные изображения двенадцати месяцев года и типичные для каждого месяца сельскохозяйственные работы. В числе символов месяцев есть неожиданные: январь изображён в виде римского бога Януса (здесь он трёхликий), а март — в виде сидящего юноши, из ноги которого женщина вынимает занозу.
Фрески верхнего регистра стен символически изображают пять свободных искусств: грамматику, геометрию, музыку, математику и астрономию. На каждой фреске на троне восседает мэтр, достигший вершин этого искусства (имена не сохранились), а у подножия трона танцуют девушки. Переход от стен к своду украшен фигурами четырёх теламонов, как будто несущих на плечах тяжесть свода.
Фрески свода собраны в тематические циклы, соответствующие четырём круговым регистрам. В первом снизу регистре представлены четыре времени года в виде четырёх человек разного возраста: от юного (весна) до дряхлого (зима). В следующем регистре изображена карта морей, ещё выше — знаки зодиака (предположительно, все двенадцать, но сохранились только Водолей, Весы, Козерог, Телец и Скорпион), далее — символы созвездий (сохранилась только Андромеда). Предположительно, в центре свода находилось символическое изображение года.
Фрески северной половины
Фрески нижнего регистра стен представляют добродетели и блаженства в виде облачённых в доспехи женщин. На плечах женщины несут святых (ветхозаветных, новозаветных или из истории Церкви), отличившихся или наиболее ярко явивших указанную добродетель (Соломон, апостолы Пётр и Павел, блаженный Августин, мученик Лаврентий, святые Франциск и Доминик), а ногами попирают персонажей, чьи пороки прямо противоположны соответствующей добродетели (в их числе Нерон, Александр Македонский, Юлиан Отступник). Святые расположены в хронологическом порядке: от древнего Соломона до недавно канонизированных Франциска и Доминика.
В верхнем регистре стен фрески сохранились лишь частично. Идентифицированы Митра, убивающий быка (символ спасения и победы над тёмными силами); две полуобнажённых фигуры с рогами изобилия и корзинами, полными цветов и фруктов (символы щедрости и достатка); мчащаяся в колеснице персона Солнца (символ Христа); движущаяся в запряжённой быками повозке персона Луны (символ Церкви).
Из фресок свода сохранились только четыре теламона. Утерянные прочие фрески свода не дают возможности восстановить общий замысел росписи комнаты.
Литература
- Lia Barelli. The Monumental complex of Santi Quattro Coronati in Rome. — Rome: Viella, 2009. — 96 с. — ISBN 978-88-8334-426-8.
- Heinz-Joachim Fischer, Rom. Zweieinhalb Jahrtausende Geschichte, Kunst und Kultur der Ewigen Stadt, DuMont Buchverlag, Köln 2001, ISBN 3-7701-5607-2, S. 236—237


