Пирамида Джосера
| Пирамида Джосера | |
|---|---|
![]() Ступенчатая пирамида Джосера в Саккаре | |
| Характеристики | |
| Месторасположение | Саккара |
| Заказчик | Джосер (Нечерихет) |
| Время строительства | 3 Династия (ок. 2650 г. до н. э.) |
| Тип | Ступенчатая пирамида |
| Размер основания | 121 × 109 |
| Высота (первоначально) | 62,5 |
| Высота (сегодня) | 58 |
| Объём | 330400 |
Ступенчатая пирамида в Саккаре — древнейшее из сохранившихся в мире крупных каменных зданий. Построено зодчим Имхотепом в Саккаре для погребения фараона Джосера ок. 2650 года до н. э.
Форма пирамиды
Эта шестиступенчатая пирамида (размерами 125 м на 115 м и высотой приблизительно 62 м) стала первой пирамидой в Древнем Египте. До настоящего времени пирамида Джосера сохранилась в хорошем состоянии, хотя за минувшие тысячелетия она оказалась несколько занесена песком, так что её размеры составляют на сегодняшний день 121 м × 109 м, а высота 61 м. Стили и формы, найденные в процессе строительства этой пирамиды, стали образцом для подражания и дальнейшего развития каменного строительства не только в Древнем Египте, но и в других регионах древнего мира.
Постройка

Архитектором пирамиды Джосера, согласно позднеегипетской традиции, считается высший сановник (чати) Джосера Имхотеп. Первоначально Имхотеп планировал создать обычную каменную мастабу (прямоугольную гробницу). Лишь в процессе строительства она превратилась в первую ступенчатую пирамиду. Смысл ступеней был, возможно, символический — по ним покойный фараон должен был подняться на небо. Но с самого начала она отличалась от предыдущих мастаб, так как в качестве строительного материала здесь использовался камень, а не кирпич-сырец. Строительство проходило в шесть этапов, по количеству ступеней. Не исключено, что ядро гробницы из известняковых блоков было построено ещё для брата Джосера Санахта. В результате надстроек основание пирамиды достигло размеров 125 метров × 115 метров, а высота — 62 метра.
В конструкции пирамиды имеется особенность, не встречающаяся позже в пирамидах фараонов — гигантская по ширине и глубине вертикальная шахта, со своеобразным огромным составным из гранитных «шпал» саркофагом. Шахта перекрыта сверху куполом. Саркофаг имеет вверху круглое отверстие с пробкой, что роднит его с неолитическими дольменами, и покоится на обломках какого-то мраморного сооружения, которое было украшено резьбой в виде звёзд. Происхождение этих обломков — объект пристального исследования археологов, так как считается, что саркофаг в современном очень хорошем состоянии мог быть собран именно на обломках, но никак не на разрушившемся позднее сооружении.
Пирамида Джосера предназначалась для всей семьи усопшего, как и ранние мастабы. В более поздних пирамидах хоронили только одного фараона. В пирамиде Джосера для членов семьи приготовили 11 погребальных камер в тоннелях пирамиды. Там похоронены все его жёны и дети, в том числе найдена мумия ребёнка приблизительно восьми лет. Тело самого Джосера не найдено (вероятно, от него сохранилась лишь мумифицированная пятка). Пирамида была ограблена в древности, причём имеется несколько разных лазов, пробитых грабителями.
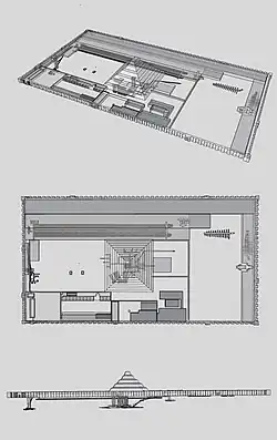
Храмовый комплекс
Храмовый комплекс пирамиды Джосера является крупнейшим среди прочих древнеегипетских пирамид. Первые постройки возведены для проведения погребального ритуала, чтобы продлить жизнь Ка фараона после его смерти. Постройки комплекса мастерски выполнены с внешней стороны и не столь внимательно с внутренней, поскольку некоторые возведены не из практической необходимости.
| План комплекса пирамиды Джосера | |
|---|---|
![]() |
|
Раскопки
1 июля 2018 года во время реставрации пирамиды Джосера была найдена бронзовая статуя древнеегипетского бога Осириса, держащего перо и скипетр в руках, в короне-атеф. Высота статуи 63 см (2 фута и 1 дюйм) и ширина 15 см в самой широкой части[1][2].
В марте 2022 года во время раскопок около пирамиды было найдено пять богато украшенных древних гробниц, датированных серединой XXVIII — серединой XXI века до нашей эры (Первый переходный период)[3].
Галерея

Руины храма «T»
Вид на Южный двор


- Частично восстановленная облицовка пирамиды с ю-в стороны
Проход внутрь пирамиды
Погребальная камера
Восстановленные врата заупокойного комплекса Джосера, архитектурный мотив которого составила ложная дверь
Западный вход в колонный зал со стороны площади хеб-сед- Гипостильный зал заупокойного храма с каменными колоннами в виде стволов деревьев
См. также
Примечания
- ↑ Статую бога нашли в древнейшей египетской пирамиде. Zakon.kz. Дата обращения: 4 июля 2018. Архивировано 4 июля 2018 года.
- ↑ The God statue Discovered in the First Ancient Egyptian Pyramid (англ.). Дата обращения: 4 июля 2018. Архивировано 4 июля 2018 года.
- ↑ Возле древнейшей египетской пирамиды нашли пять неизвестных гробниц. Лента.ру. — новость. Дата обращения: 23 июля 2022. Архивировано 27 июля 2022 года.
Ссылки
На Викискладе есть медиафайлы по теме Пирамида Джосера
Пирамида Джосера / Максим Лебедев, Антропогенез.ру, 2020.- Виртуальная экскурсия. Часть 1 (колоннада) Архивная копия от 29 апреля 2021 на Wayback Machine
- Виртуальная экскурсия. Часть 2 (южный вход в Ступенчатую пирамиду) Архивная копия от 29 апреля 2021 на Wayback Machine
- Виртуальная экскурсия. Часть 3 (погребальная камера) Архивная копия от 29 апреля 2021 на Wayback Machine


