Опыт Майкельсона — Морли

О́пыт Ма́йкельсона — Мо́рли — экспериментальная попытка обнаружить существование светоносного эфира, гипотетической среды, заполняющей пространство, которая считалась носителем световых волн. Эксперимент был проведён в период с апреля по июль 1887 года американскими физиками Альбертом А. Майкельсоном и Эдвардом У. Морли в Кейсовском университете Западного резерва в Кливленде, штат Огайо, и опубликован в ноябре того же года[1].
В опыте сравнивалась скорость света в перпендикулярных направлениях в попытке обнаружить относительное движение материи через неподвижный светоносный эфир («эфирный ветер»). Результат был отрицательным, поскольку Майкельсон и Морли не обнаружили существенной разницы между скоростью света в направлении движения через предполагаемый эфир и скоростью под прямым углом. Этот результат обычно считается первым веским доказательством против преобладавшей в то время теории эфира, а также началом направления исследований, которое в конечном итоге привело к созданию специальной теории относительности, исключающей стационарный эфир[A 1]. Об этом эксперименте Эйнштейн писал: «Если бы опыт Майкельсона — Морли не поставил нас в серьёзное замешательство, никто бы не счёл теорию относительности (наполовину) искуплением»[A 2]:219.
Эксперименты типа Майкельсона — Морли повторялись много раз с неуклонно возрастающей чувствительностью. К ним относятся эксперименты с 1902 по 1905 год и серия экспериментов 1920-х годов. В 2009 году эксперименты с оптическим резонатором подтвердили отсутствие эфирного ветра на уровне 10−17[2][3]. Вместе с опытами Ивеса — Стилвелла и Кеннеди — Торндайка, эксперименты типа Майкельсона — Морли составляют один из фундаментальных тестов специальной теории относительности[A 3].
Попытки обнаружения эфира
Физические теории XIX века предполагали, что подобно тому, как поверхностные волны на воде должны быть связаны с веществом, то есть «среду», чтобы двигаться поперёк (в данном случае вода), так и слышимый звук требует среды для передачи своих волновых движений (например, воздух или вода), поэтому свет должен также нуждаться в среде, «светоносном эфире», чтобы передавать свои волновые движения. Поскольку свет может проходить через вакуум, предполагалось, что даже вакуум должен быть заполнен эфиром. Поскольку скорость света так велика, а материальные тела проходят сквозь эфир без явного трения или сопротивления, предполагалось, что он обладает весьма необычной комбинацией свойств. Разработка экспериментов для исследования этих свойств была приоритетной задачей физики XIX века[A 4]:411ff.
Земля вращается вокруг Солнца со скоростью около 30 км/с. Земля находится в движении, поэтому рассматривались две основные возможности: (1) эфир неподвижен и лишь частично увлекается Землёй (предложено Огюстеном Жаном Френелем в 1818 г.), или (2) эфир полностью увлекается Землей и, таким образом, разделяет его движение на поверхности Земли (предложено сэром Джорджем Стоксом в 1844 году)[A 5]. Кроме того, Джеймс Клерк Максвелл (1865) осознал электромагнитную природу света и разработал формализм, который сейчас называется уравнениями Максвелла, но эти уравнения по-прежнему интерпретировались как описывающие движение волн через эфир, состояние движения которого было неизвестно. В конце концов, идея Френеля о (почти) стационарном эфире была предпочтительнее, потому что она, казалось, была подтверждена экспериментом Физо (1851 г.) и аберрацией света звёзд[A 5].

Согласно гипотезам стационарного и частично увлечённого эфира, Земля и эфир находятся в относительном движении, что подразумевает наличие так называемого «эфирного ветра» (рис. 2). Хотя теоретически движение Земли могло бы соответствовать движению эфира в один момент времени, Земля не могла всё время оставаться в состоянии покоя по отношению к эфиру из-за изменения как направления, так и скорости движения. В любой данной точке на поверхности Земли сила и направление ветра будут меняться в зависимости от времени суток и времени года. Считалось, что путём анализа скорости возвращения света в разных направлениях в разное время можно измерить движение Земли относительно эфира. Ожидаемая относительная разница в измеренной скорости света была совсем небольшой, учитывая, что скорость Земли на её орбите вокруг Солнца имеет величину около одной сотой процента от скорости света[A 4]:417ff.
В середине XIX века считалось возможным измерение эффектов эфирного ветра первого порядка, то есть эффектов, пропорциональных v/c (v — скорость Земли, c — скорость света), но прямое измерение с требуемой точностью скорости света было невозможно. Например, установка Физо — Фуко могла измерять скорость света примерно с 5-процентной точностью, чего было совершенно недостаточно для непосредственного измерения изменения скорости света первого порядка, поскольку v/c ~ 0,01 %. Поэтому ряд физиков попытались провести измерения косвенных эффектов первого порядка не самой скорости света, а изменений скорости света (см. эксперименты с эфирным ветром первого порядка). Эксперимент Хука, например, был предназначен для обнаружения интерферометрических сдвигов полос из-за разности скоростей световых волн, распространяющихся в противоположных направлениях в покоящейся воде. Все результаты таких экспериментов были отрицательными[A 6]. Это можно объяснить, используя идею о коэффициенте увлечения Френеля, согласно которой эфир и, следовательно, свет частично увлекаются движущимся веществом. Частичное увлечение эфиром помешало бы попыткам измерить любое изменение скорости света первого порядка. Как указывал Максвелл (1878 г.), какую-либо надежду на обнаружение эфирного ветра могли бы иметь только экспериментальные установки, способные измерять эффекты второго порядка, то есть эффекты, пропорциональные второй степени отношения v/c[A 7][A 8]. Однако существующие экспериментальные установки оказались недостаточно чувствительными для измерения эффектов такого масштаба (v2/c2 ~ 10−8).
Эксперименты 1881 и 1887 гг
Эксперимент Майкельсона (1881 г.)

У Майкельсона было решение проблемы создания устройства, достаточно точного для обнаружения потока эфира. В 1877 году, преподавая в своей альма-матер, Военно-морской академии США в Аннаполисе, Майкельсон провёл свои первые известные эксперименты со скоростью света в рамках демонстрации в классе. В 1881 году он оставил действительную военно-морскую службу США, завершив учёбу в Германии. В том же году Майкельсон использовал прототип экспериментального устройства, чтобы провести ещё несколько измерений.
Разработанное им устройство, позже известное как интерферометр Майкельсона, посылало жёлтый свет от пламени натрия (для юстировки) или белый свет (для фактических наблюдений) через наполовину посеребрённое зеркало, которое использовалось для разделения его на два луча под прямым углом друг к другу. После выхода из светоделителя лучи направлялись к концам длинных плеч, где отражались обратно в середину маленькими зеркалами. Затем они собирались на дальней стороне делителя в окуляре, создавая картину конструктивной и деструктивной интерференции, поперечное смещение которой зависело бы от относительного времени, которое требуется свету для прохождения продольных и поперечных плеч. Если Земля движется через эфирную среду, лучу света, идущему параллельно потоку этого эфира, потребуется больше времени, чтобы отразиться туда и обратно, чем лучу, идущему перпендикулярно эфиру, потому что увеличение времени, прошедшего от движения против эфира ветра больше, чем время, сэкономленное при путешествии с эфирным ветром. Майкельсон ожидал, что движение Земли приведет к смещению полос, равному 0,04 полосы, то есть к расстоянию между областями одинаковой интенсивности. Он не заметил ожидаемого сдвига; наибольшее среднее отклонение, которое он измерил (в северо-западном направлении), составило всего 0,018 отсчета; большинство его измерений были намного меньше. Его вывод заключался в том, что гипотезу Френеля о стационарном эфире с частичным увлечением эфира следует отвергнуть, и, таким образом, он подтвердил гипотезу Стокса о полном увлечении эфира[4].
Однако Альфред Потье (а позже Хендрик Лоренц) указал Майкельсону, что он допустил ошибку в расчётах и что ожидаемый сдвиг полосы должен был составлять всего 0,02 полосы. Аппарат Майкельсона был подвержен экспериментальным ошибкам, слишком большим, чтобы сказать что-либо убедительное об эфирном ветре. Окончательное измерение эфирного ветра потребует эксперимента с большей точностью и лучшим контролем, чем в оригинале. Тем не менее, прототип успешно продемонстрировал, что основной метод осуществим[A 5][A 9].
Эксперимент Майкельсона — Морли (1887 г.)

В 1885 году Майкельсон начал сотрудничество с Эдвардом Морли, потратив значительное время и деньги, чтобы подтвердить с большей точностью эксперимент Физо 1851 года по коэффициенту увлечения Френеля[5], чтобы улучшить эксперимент Майкельсона 1881 года[1] и установить длину волны света в качестве эталона длины[6][7]. В это время Майкельсон был профессором физики в Школе прикладных наук Кейса, а Морли был профессором химии в Кейсовском университете Западного резерва (WRU), который делил кампус со Школой Кейса на восточной окраине Кливленда. В сентябре 1885 года у Майкельсона случился нервный срыв, от которого он оправился к октябрю 1885 года. Морли приписал этот срыв напряжённой работе Майкельсона во время подготовки экспериментов. В 1886 году Майкельсон и Морли успешно подтвердили коэффициент сопротивления Френеля — этот результат также рассматривался как подтверждение концепции стационарного эфира[A 1].
Этот результат укрепил их надежду найти эфирный ветер. Майкельсон и Морли создали улучшенную версию эксперимента Майкельсона с более чем достаточной точностью, чтобы обнаружить этот гипотетический эффект. Эксперимент проводился в несколько периодов постоянных наблюдений с апреля по июль 1887 г. в подвале общежития Адельберта WRU (позже переименованного в Пирс-холл, снесённого в 1962 году)[A 10][A 11].
Как показано на рис. 5, свет многократно отражался назад и вперёд вдоль плеч интерферометра, увеличивая длину пути до 11 м (36 футов). При такой длине дрейф составляет около 0,4 полосы. Чтобы его было легко обнаружить, аппарат был собран в закрытой комнате в подвале тяжёлого каменного общежития, что исключило большинство тепловых и вибрационных эффектов. Вибрации удалось дополнительно уменьшить, установив аппарат на большой блок песчаника (рис. 1), толщиной около фута и квадрат со стороной 5 футов (1,5 м), который плавал в круглом корыте с ртутью. Они подсчитали, что можно обнаружить эффекты около 0,01 ширины полосы.
Майкельсон, Морли и другие ранние экспериментаторы, использующие интерферометрические методы в попытке измерить свойства светоносного эфира, использовали (частично) монохроматический свет только для первоначальной настройки своего оборудования, всегда переключаясь на белый свет для фактических измерений. Причина в том, что измерения фиксировались визуально. Чисто монохроматический свет привёл бы к однородному рисунку полос. Не имея современных средств контроля температуры окружающей среды, экспериментаторы боролись с постоянным дрейфом интерференционных полос, даже когда интерферометр был установлен в подвале. Поскольку полосы иногда исчезали из-за вибраций, вызванных проезжающими лошадьми, отдалёнными грозами и тому подобного явлений, наблюдатель мог легко «потеряться», когда полосы снова становились видимыми. Преимущества белого света, дающего отчётливую цветную интерференционную картину, намного перевешивают трудности юстировки прибора из-за его малой длины когерентности. Как писал Дейтон Миллер, «полосы белого света были выбраны для наблюдений, потому что они состоят из небольшой группы полос, имеющих центральную, резко очерченную чёрную полосу, которая образует постоянную нулевую отметку для всех показаний»[A 12][note 3]. Использование частично монохроматического света (жёлтый натриевый свет) во время начальной настройки позволило исследователям более или менее легко определить положение равной длины пути, прежде чем переключиться на белый свет[note 4].
Ртутный жёлоб позволял прибору поворачиваться с почти нулевым трением, так что, сделав один толчок блоку песчаника, он медленно вращался во всем диапазоне возможных углов к «эфирному ветру», а за измерениями непрерывно наблюдали взглядом через окуляр. Гипотеза эфирного ветра подразумевает, что, поскольку одно из плеч неизбежно поворачивается в направлении ветра в то же самое время, когда другое плечо поворачивается перпендикулярно ветру, эффект должен быть заметен даже в течение нескольких минут.
Ожидалось, что эффект будет представлен на графике в виде синусоиды с двумя пиками и двумя провалами на один оборот устройства. Этого результата можно было ожидать, потому что во время каждого полного оборота каждое плечо будет дважды параллельно эфирному ветру (лицом к ветру и от него, давая одинаковые показания) и дважды перпендикулярно ему. Кроме того, из-за вращения Земли ожидается, что эфирный ветер будет демонстрировать периодические изменения направления и величины в течение звёздного дня.
Ожидалось, что из-за движения Земли вокруг Солнца измеренные данные также будут показывать годовые вариации.
Самый известный «неудачный» эксперимент
После всех этих размышлений и подготовки эксперимент стал самым известным неудачным экспериментом в истории[A 13]. Вместо того, чтобы дать представление о свойствах эфира, в статье Майкельсона и Морли в American Journal of Science сообщается, что измерение составляет всего одну сороковую от ожидаемого смещения (рис. 7), но «поскольку смещение пропорционально квадрату скорости», они пришли к выводу, что измеренная скорость была «вероятно меньше одной шестой» ожидаемой скорости движения Земли по орбите и «заведомо меньше одной четвёртой»"[1]. Хотя эта небольшая «скорость» была измерена, она была сочтена слишком малой, чтобы её можно было использовать в качестве доказательства скорости относительно эфира, и было понятно, что она находится в пределах экспериментальной ошибки, которая позволила бы скорости на самом деле быть нулевой[A 1]. Например, Майкельсон писал о «явно отрицательном результате» в письме лорду Рэлею в августе 1887 г.[A 14]:
Эксперименты по относительному движению Земли и эфира были завершены, и результат определённо отрицательный. Ожидаемое отклонение интерференционных полос от нуля должно было составлять 0,40 полосы — максимальное смещение было 0,02, а среднее значительно меньше 0,01 — и то не в том месте. Поскольку смещение пропорционально квадратам относительных скоростей, отсюда следует, что если эфир проскальзывает, относительная скорость меньше одной шестой скорости Земли.
Оригинальный текст (англ.)The Experiments on the relative motion of the earth and ether have been completed and the result decidedly negative. The expected deviation of the interference fringes from the zero should have been 0.40 of a fringe – the maximum displacement was 0.02 and the average much less than 0.01 – and then not in the right place. As displacement is proportional to squares of the relative velocities it follows that if the ether does slip past the relative velocity is less than one sixth of the earth’s velocity.
С точки зрения тогдашних моделей эфира результаты экспериментов были противоречивыми. Эксперимент Физо и его повторение Майкельсоном и Морли в 1886 году, по-видимому, подтвердили стационарный эфир с частичным увлечением эфира и опровергли полное увлечение эфиром. С другой стороны, гораздо более точный эксперимент Майкельсона — Морли в 1887 году, по-видимому, подтвердил полное увлечение эфира и опроверг стационарность эфира[A 5]. Кроме того, нулевой результат Майкельсона — Морли был дополнительно подтверждён нулевыми результатами других экспериментов второго порядка различного рода, а именно эксперимента Траутона — Нобла (1903 г.) и экспериментов Рэлея и Брейса (1902—1904 гг.). Эти проблемы и их решение привели к развитию преобразования Лоренца и специальной теории относительности.
После «неудачного» эксперимента Майкельсон и Морли прекратили свои измерения эфирного ветра и начали использовать свою недавно разработанную технику для установления длины волны света в качестве стандарта эталона длины[6][7].
Анализ светового пути и последствия
Наблюдатель покоится в эфире

Время прохождения луча в продольном направлении можно определить следующим образом[A 15]: Свет исходит от источника и распространяется со скоростью света в эфире. Он проходит через полупосеребренное зеркало в начале координат при . Отражающее зеркало в этот момент находится на расстоянии (длина плеча интерферометра) и движется со скоростью . Луч попадает в зеркало во время и, таким образом, преодолевает расстояние . В это время зеркало преодолело расстояние . Таким образом и, соответственно, время в пути . То же самое относится и к обратному движению со знаком обращенном вспять, в результате чего и . Общее время в пути составляет:
Майкельсон правильно получил это выражение в 1881 г., однако в поперечном направлении он получил неверное выражение
потому что он упустил из виду увеличенную длину пути в остальной части эфира. Это было исправлено Альфредом Потье (1882 г.) и Хендриком Лоренцем (1886 г.). Вывод в поперечном направлении можно дать следующим образом (аналогично выводу замедления времени с помощью световых часов): луч распространяется со скоростью света и попадает на зеркало в момент времени , преодолевая расстояние . В то же время зеркало преодолело расстояние в направлении х. Таким образом, чтобы попасть на зеркало, путь луча равен в направлении y (при равной длине плеч) и в направлении х. Эта наклонная траектория движения следует из перехода от системы покоя интерферометра к системе покоя эфира. Следовательно, теорема Пифагора даёт фактическое расстояние прохождения луча . Таким образом и, соответственно, время в пути , то же самое и для обратного распространения. Общее время в пути составляет:
Разница во времени между T ℓ и T t определяется как[A 16]
Чтобы найти разность путей, результат умножается на c;
Разность хода обозначается Δλ, поскольку лучи сдвинуты по фазе на некоторое число длин волн (λ). Чтобы визуализировать это, представьте себе два пути луча вдоль продольной и поперечной плоскости и расположите их прямо (анимация этого показана на минуте 11:00, Механическая Вселенная, эпизод 41[8]). Один путь будет длиннее другого на расстояние равное Δλ. В качестве альтернативы рассмотрим перестановку формулы скорости света .
Если отношение верно (если скорость эфира мала по сравнению со скоростью света), то выражение можно упростить, используя биномиальное разложение первого порядка;
Итак, переписывая вышеизложенное с точки зрения степеней[9]
Следовательно
Из этого вывода видно, что эфирный ветер проявляется как разность путей. Этот вывод верен, если эксперимент ориентирован с любым коэффициентом 90° по отношению к направлению эфирного ветра. Если разность хода составляет полное число длин волн, наблюдается конструктивная интерференция (центральная полоса будет белой). Если разность хода составляет полное число длин волн плюс половина, наблюдается деконструктивная интерференция (центральная полоса будет чёрной).
Чтобы доказать существование эфира, Майклсон и Морли попытались найти смещение полосы. Идея была проста: полосы интерференционной картины должны смещаться при повороте её на 90°, так как два луча поменялись ролями. Чтобы найти смещение полосы, вычтите разность хода в первой ориентации из разности хода во второй, затем разделите на длину волны λ света[9]
Обратите внимание на разницу между Δλ, которая представляет собой некоторое количество длин волн, и λ, которое представляет собой одну длину волны. Как видно из этого соотношения, сдвиг интерференционных полос n является безразмерной величиной.
Так как L ≈ 11 метров и λ≈500 нанометров ожидаемое смещение полосы было n ≈ 0,44. Отрицательный результат привёл Майкельсона к выводу об отсутствии измеримого эфирного ветра[1]. Однако он никогда не принимал это на личном уровне, и негативный результат преследовал его всю оставшуюся жизнь (Источник; Механическая Вселенная, эпизод 41[8]).
Наблюдатель рядом с интерферометром
Если ту же ситуацию описать с точки зрения наблюдателя, движущегося вместе с интерферометром, то действие эфирного ветра будет подобно действию, которое испытывает пловец, пытающийся двигаться со скоростью против реки, текущей со скоростью [A 17].
В продольном направлении пловец сначала движется вверх по течению, поэтому его скорость уменьшается из-за течения реки до . На обратном пути, двигаясь вниз по течению, его скорость увеличивается до . Это даёт время прохождения луча и как указано выше.
В поперечном направлении пловец должен компенсировать течение реки, двигаясь под определённым углом против направления течения, чтобы поддерживать точное поперечное направление движения и достичь другой стороны реки в правильном месте. Это снижает его скорость до , и даёт время прохождения луча как указано выше.
Зеркальное отражение
Классический анализ предсказывал относительный фазовый сдвиг между продольным и поперечным пучками, который в аппаратах Майкельсона и Морли должен был быть легко измерен. Что не всегда принимается во внимание (поскольку не было средств измерения), так это то, что движение через гипотетический эфир также должно было вызвать расхождение двух лучей, когда они вышли из интерферометра, примерно на 10−8 радиан[A 18].
Для движущегося аппарата классический анализ требовал, чтобы светоделительное зеркало было слегка смещено от точных 45 °, если продольный и поперечный лучи должны выходить из аппарата точно наложенными друг на друга. В релятивистском анализе лоренцево сжатие светоделителя в направлении движения приводит к тому, что он становится более перпендикулярным ровно на величину, необходимую для компенсации углового расхождения двух лучей[A 18].
Сокращение длины и преобразование Лоренца
Первый шаг к объяснению нулевого результата эксперимента Майкельсона и Морли был найден в гипотезе сокращения Фитцджеральда — Лоренца, теперь называемой просто сокращением длины или сокращением Лоренца, впервые предложенной Джорджем Фицджеральдом (1889 г.) и Хендриком Лоренцем (1892 г.)[A 19]. Согласно этому закону все объекты физически сокращаются за счёт вдоль линии движения (первоначально считалось, что это относительно эфира), фактор Лоренца. Эта гипотеза была частично мотивирована открытием Оливера Хевисайда в 1888 году, что электростатические поля сжимаются по линии движения. Но так как в то время не было оснований предполагать, что силы связи в материи имеют электрическое происхождение, то сокращение длины движущейся материи по отношению к эфиру считалось гипотезой Ad hoc[A 9].
Если длину , измеренную наблюдателем, покоящимся относительно эфира, выразить через собственную длину в приведённой выше формуле для , то время распространения света в продольном направлении становится равным времени распространения света в поперечном направлении:
Однако сокращение длины есть лишь частный случай более общего соотношения, согласно которому поперечная длина больше продольной на отношение . Этого можно достичь разными способами. Если — подвижная продольная длина и подвижная поперечная длина, остальные длины, то дано[A 20]:
может быть выбран произвольно, поэтому существует бесконечно много комбинаций, объясняющих нулевой результат Майкельсона — Морли. Например, если релятивистское значение сокращения длины происходит, но если тогда не сокращение длины, а удлинение имеет место. Позднее эта гипотеза была расширена Джозефом Лармором (1897 г.), Лоренцем (1904 г.) и Анри Пуанкаре (1905 г.), которые разработали полное преобразование Лоренца, включая замедление времени, для объяснения экспериментов Траутона — Ноубла, экспериментов Рэлея и Брейса и опыты Кауфмана. Оно имеет форму
Оставалось определить значение , который, как показал Лоренц (1904), равно единице[A 20]. В общем, Пуанкаре (1905) показал, что только позволяет этому преобразованию образовать группу, так что это единственный выбор, совместимый с принципом относительности, то есть делающий стационарный эфир необнаружимым. При этом сокращение длины и замедление времени получают свои точные релятивистские значения[A 21].
Специальная теория относительности
Альберт Эйнштейн сформулировал специальную теорию относительности к 1905 году, выведя преобразование Лоренца и, следовательно, сокращение длины и замедление времени из постулата относительности и постоянства скорости света, тем самым устранив ad hoc характер из гипотезы сокращения. Эйнштейн подчеркивал кинематическую основу теории и модификацию понятия пространства и времени, при этом неподвижный эфир больше не играл в его теории никакой роли. Он также указывал на групповой характер трансформации. Эйнштейн был мотивирован теорией электромагнетизма Максвелла (в той форме, в которой она была дана Лоренцем в 1895 году) и отсутствием доказательств существования светоносного эфира[A 22].
Это позволяет более элегантно и интуитивно объяснить нулевой результат Майкельсона — Морли. В сопутствующей системе отсчёта нулевой результат очевиден, поскольку аппарат можно считать покоящимся в соответствии с принципом относительности, поэтому времена прохождения луча одинаковы. В системе отсчета, относительно которой движется аппарат, применяются те же рассуждения, что и описанные выше в разделе «Сокращение длины и преобразование Лоренца», за исключением того, что слово «эфир» необходимо заменить на «несопутствующая инерциальная система отсчета». Эйнштейн писал в 1916 году[A 23]:
Хотя предполагаемая разница между этими двумя временами чрезвычайно мала, Майкельсон и Морли провели эксперимент с интерференцией, в котором эта разница должна была быть чётко обнаружена. Но эксперимент дал отрицательный результат — факт, весьма озадачивающий физиков. Лоренц и Фитцджеральд избавили теорию от этой трудности, предположив, что движение тела относительно эфира вызывает сокращение тела в направлении движения, причём величина сжатия как раз достаточна, чтобы компенсировать разницу во времени, упомянутую выше. Сравнение с обсуждением в разделе 11 показывает, что и с точки зрения теории относительности это решение трудности было правильным. Но на основе теории относительности метод интерпретации несравненно более удовлетворительный. Согласно этой теории не существует такой вещи, как «особо благоприятная» (уникальная) система координат, которая могла бы вызвать введение эфирной идеи, и, следовательно, не может быть ни эфирного ветра, ни какого-либо эксперимента, чтобы продемонстрировать его. Здесь сокращение движущихся тел вытекает из двух основных положений теории без введения особых гипотез; и в качестве первого фактора, участвующего в этом сжатии, мы находим не движение само по себе, которому мы не можем придать никакого значения, а движение относительно тела отсчёта, избранного в данном конкретном случае. Таким образом, для системы координат, движущейся вместе с Землёй, зеркальная система Майкельсона и Морли не укорачивается, а укорачивается для системы координат, покоящейся относительно Солнца.
Оригинальный текст (англ.)Although the estimated difference between these two times is exceedingly small, Michelson and Morley performed an experiment involving interference in which this difference should have been clearly detectable. But the experiment gave a negative result — a fact very perplexing to physicists. Lorentz and FitzGerald rescued the theory from this difficulty by assuming that the motion of the body relative to the æther produces a contraction of the body in the direction of motion, the amount of contraction being just sufficient to compensate for the difference in time mentioned above. Comparison with the discussion in Section 11 shows that also from the standpoint of the theory of relativity this solution of the difficulty was the right one. But on the basis of the theory of relativity the method of interpretation is incomparably more satisfactory. According to this theory there is no such thing as a "specially favoured" (unique) co-ordinate system to occasion the introduction of the æther-idea, and hence there can be no æther-drift, nor any experiment with which to demonstrate it. Here the contraction of moving bodies follows from the two fundamental principles of the theory, without the introduction of particular hypotheses; and as the prime factor involved in this contraction we find, not the motion in itself, to which we cannot attach any meaning, but the motion with respect to the body of reference chosen in the particular case in point. Thus for a co-ordinate system moving with the earth the mirror system of Michelson and Morley is not shortened, but it is shortened for a co-ordinate system which is at rest relatively to the sun.
Степень, в которой нулевой результат эксперимента Майкельсона-Морли повлиял на Эйнштейна, оспаривается. Ссылаясь на некоторые утверждения Эйнштейна, многие историки утверждают, что они не сыграли существенной роли на его пути к специальной теории относительности[A 24][A 25], в то время как другие утверждения Эйнштейна, вероятно, предполагают, что они повлияли на него[A 26]. В любом случае нулевой результат опыта Майкельсона — Морли помог понятию постоянства скорости света получить широкое и быстрое признание[A 24].
Позже Ховард Перси Робертсон (1949) и другие[A 3][A 27] (см. Теорию тестов Робертсона — Мансури — Сексла) показали, что можно полностью вывести преобразование Лоренца из комбинации трёх экспериментов. Во-первых, опыт Майкельсона — Морли показал, что скорость света не зависит от ориентации аппарата, установив связь между продольной (β) и поперечной (δ) длинами. Затем, в 1932 году, Рой Кеннеди и Эдвард Торндайк модифицировали опыт Майкельсона — Морли, сделав длины пути расщеплённого луча неравными, при этом одно плечо было очень коротким[10]. Эксперимент Кеннеди — Торндайка длился много месяцев, пока Земля вращалась вокруг Солнца. Их отрицательный результат показал, что скорость света не зависит от скорости аппарата в разных инерциальных системах отсчета. Кроме того, она установила, что, кроме изменений длины, должны происходить и соответствующие изменения времени, то есть установила связь между продольными длинами (β) и изменениями времени (α). Таким образом, оба эксперимента не дают индивидуальных значений этих величин. Эта неопределённость соответствует неопределённому фактору как описано выше. Из теоретических соображений (групповой характер преобразования Лоренца, требуемый принципом относительности) было ясно, что индивидуальные величины сокращения длины и замедления времени должны принять свою точную релятивистскую форму. Но прямое измерение одной из этих величин было всё же желательно для подтверждения теоретических результатов. Это было достигнуто в эксперименте Айвза — Стилуэлла (1938 г.), в котором α измерялся в соответствии с замедлением времени. Объединение этого значения α с нулевым результатом Кеннеди — Торндайка показывает, что β должно принимать значение релятивистского сокращения длины. Сочетание β с нулевым результатом Майкельсона — Морли показывает, что δ должно быть равно нулю. Следовательно, преобразование Лоренца с является неизбежным следствием сочетания этих трёх экспериментов[A 3].
Специальная теория относительности обычно считается решением всех измерений отрицательного эфирного дрейфа (или изотропии скорости света), включая нулевой результат Майкельсона — Морли. Было проведено множество высокоточных измерений в качестве проверки специальной теории относительности и современных поисков нарушения Лоренца в фотонном, электронном, нуклонном или нейтринном секторах, и все они подтверждают теорию относительности.
Неправильные альтернативы
Как упоминалось выше, Майкельсон изначально полагал, что его эксперимент подтвердит теорию Стокса, согласно которой эфир полностью увлекался в окрестности Земли (см. Гипотеза увлечения эфира). Однако полное эфирное торможение противоречит наблюдаемой аберрации света, а также противоречило другим экспериментам. Кроме того, Лоренц показал в 1886 г., что попытка Стокса объяснить аберрацию противоречива[A 5][A 4].
Кроме того, предположение о том, что эфир не распространяется поблизости, а только внутри материи, было очень проблематичным, как показал эксперимент Хаммара (1935 г.). Хаммар направил одно плечо своего интерферометра через тяжелую металлическую трубу, забитую свинцом. Теоретически предполагалось, что если бы эфир тянулся массой, массы запечатанной металлической трубы было бы достаточно, чтобы вызвать видимый эффект. И снова никакого эффекта замечено не было, поэтому теории эфирного сопротивления считаются опровергнутыми.
Эмиссионная теория Вальтера Ритца (или баллистическая теория) также согласовывалась с результатами эксперимента, не требуя эфира. Теория постулирует, что свет всегда имеет одинаковую скорость по отношению к источнику[A 28]. Однако де Ситтер отметил, что теория эмиттера предсказала несколько оптических эффектов, которые не наблюдались при наблюдениях двойных звёзд, в которых свет от двух звёзд можно было измерить с помощью спектрометра. Если бы теория излучения была верна, то свет от звёзд должен был бы испытывать необычное смещение полос из-за того, что скорость звёзд прибавляется к скорости света, но такого эффекта нельзя было бы увидеть. Позже Дж. Г. Фокс показал, что первоначальные эксперименты де Ситтера были ошибочными из-за поглощения[11], но в 1977 году Брехер наблюдал рентгеновские лучи от двойных звёздных систем с аналогичными нулевыми результатами[12]. Кроме того, Филиппас и Фокс (1964) провели тесты на земных ускорителей частиц, специально предназначенные для решения более раннего возражения Фокса о «поглощения», результаты не согласуются с зависимостью скорости света от источника[13].
Последующие эксперименты

Хотя Майкельсон и Морли приступили к разным экспериментам после своей первой публикации в 1887 году, оба продолжали активно работать в этой области[A 29][A 30]. Другие варианты эксперимента проводились с нарастающей сложностью. Морли не был уверен в своих собственных результатах и продолжал проводить дополнительные эксперименты с Дейтоном Миллером с 1902 по 1904 год. Опять же, результат был отрицательным в пределах погрешности[14][15].
Опыты Миллера
Миллер работал над всё более крупными интерферометрами, кульминацией которых стала длина плеча 32-метра (105 фута) (эффективной), которую он пробовал на разных участках, в том числе на вершине горы в обсерватории Маунт-Вилсон. Чтобы избежать возможности блокировки эфирного ветра твёрдыми стенами, в его наблюдениях на вершине горы использовался специальный навес с тонкими стенами, в основном из брезента. Из зашумлённых, нерегулярных данных он постоянно извлекал небольшой положительный сигнал, который менялся с каждым оборотом устройства, звёздным временем и ежегодно. Его измерения в 1920-х годах составляли примерно 10 км/ч вместо почти 30 км/ч ожидаемых только от движения Земли по орбите. Он по-прежнему был убежден, что это произошло из-за частичного или полного увлечения эфиром, хотя и не пытался дать подробное объяснение. Он игнорировал критические анализы, демонстрирующие противоречивость его результатов и опровержение экспериментом Хаммара[A 31][note 5]. Выводы Миллера считались важными в то время и обсуждались Майкельсоном, Лоренцем и другими на встрече, о которой сообщалось в 1928 году[A 32]. По общему мнению, для проверки результатов Миллера необходимы дополнительные эксперименты. Позже Миллер построил немагнитное устройство для устранения магнитострикции, а Майкельсон построил устройство из нерасширяющегося инвара, чтобы устранить любые оставшиеся тепловые эффекты. Другие экспериментаторы со всего мира повысили точность, устранили возможные побочные эффекты или и то, и другое. До сих пор никому не удалось воспроизвести результаты Миллера, а точность современных экспериментов исключает их[A 33]. Робертс (2006) указал, что примитивные методы обработки данных, используемые Миллером и другими ранними экспериментаторами, включая Майкельсона и Морли, были способны создавать кажущиеся периодические сигналы, даже если в реальных данных их не было. После повторного анализа исходных данных Миллера с использованием современных методов количественного анализа ошибок Робертс обнаружил, что очевидные сигналы Миллера статистически незначимы[A 34].
Опыты Кеннеди
Используя специальную оптическую схему с шагом 1/20 волны в одном зеркале, Рой Дж. Кеннеди (1926) и К. К. Иллингворт (1927) (рис. 8) преобразовал задачу обнаружения смещений полос из относительно нечувствительной задачи оценки их латеральных смещений в значительно более чувствительную задачу регулировки интенсивности света по обеим сторонам резкой границы для равной яркости[16][17]. Если они наблюдали неодинаковую освещённость по обе стороны от ступени, как на рис. 8е, они добавляли или удаляли калиброванные гири из интерферометра до тех пор, пока обе стороны ступеньки снова не были равномерно освещены, как на рис. 8д. Количество добавленных или удалённых грузов служило мерой сдвига полос. Разные наблюдатели могли обнаружить изменения всего от 1/300 до 1/1500 полосы. Кеннеди также провёл эксперимент на горе Уилсон, обнаружив лишь около 1/10 дрейфа, измеренного Миллером, и никаких сезонных эффектов[A 32].
Опыты Майкельсона и Гэля

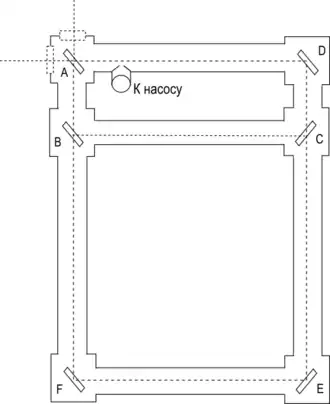
В 1925 г. Майкельсон и Гэль у Клиринга в Иллинойсе уложили на земле водопроводные трубы в виде прямоугольника. Диаметр труб 30 см. Трубы AF и DE были направлены точно с запада на восток, EF, DA и CB — с севера на юг. Длины DE и AF составляли 613 м; EF, DA и CB — 339,5 м. Одним общим насосом, работающим в течение трех часов, можно откачать воздух до давления 1 см ртутного столба. Чтобы обнаружить смещение, Майкельсон сравнивает в поле зрительной трубы интерференционные полосы, получаемые при обегании большого и малого контура. Один пучок света шёл по часовой стрелке, другой против. Смещение полос, вызываемое вращением Земли, разные люди регистрировали в различные дни при полной перестановке зеркал. Всего было сделано 269 измерений. Теоретически предполагая эфир неподвижным, следует ожидать смещения полосы на 0,236 ± 0,002. Обработка данных наблюдений дала смещение 0,230 ± 0,005, таким образом подтвердив существование и величину эффекта Саньяка[18].
С. И. Вавилов в статье «Экспериментальные основания теории относительности» объясняет этот эффект так:
Ротационные опыты Саньяка и Майкельсона — Гэля в теории относительности (частной и общей) объясняются почти так же, как возможность обнаружения вращательного движения по проявлениям центробежных сил в механике. Это — естественное следствие теории относительности, не добавляющее ничего нового[18].
Опыты Йооса
В 1930 году Георг Йоос провёл эксперимент с использованием автоматизированного интерферометра с плечами длиной 21 м, сделанными из прессованного кварца с очень низким коэффициентом теплового расширения, которые производили непрерывную фотографическую запись полос через десятки оборотов аппарата. На фотопластинках можно было измерить смещения в 1/1000 полосы. Периодических смещений полос обнаружено не было, поэтому верхний предел эфирного ветра составляет 1,5 км/ч[19].
В таблице ниже ожидаемые значения связаны с относительной скоростью между Землей и Солнцем 30 км/с. Что касается скорости Солнечной системы вокруг галактического центра около 220 км/с, или скорость Солнечной системы относительно системы покоя реликтового излучения около 368 км/с нулевые результаты этих экспериментов ещё более очевидны.
| Имя | Место расположения | Год | Длина плеча (метры) | Ожидаемый дополнительный сдвиг | Измеренный сдвиг интерференционных полос | Отношение | Верхний предел для Vaether | Экспериментальное разрешение | Нулевой результат |
|---|---|---|---|---|---|---|---|---|---|
| Майкельсон[4] | Потсдам | 1881 | 1.2 | 0.04 | ≤ 0.02 | 2 | ∼ 20 км/с | 0.02 | да |
| Майкельсон и Морли[1] | Кливленд | 1887 | 11.0 | 0.4 | < 0.02 or ≤ 0.01 | 40 | ∼ 4-8 км/с | 0.01 | да |
| Морли и Миллер[14][15] | Кливленд | 1902-1904 | 32.2 | 1.13 | ≤ 0.015 | 80 | ∼ 3.5 км/с | 0.015 | да |
| Миллер[20] | Mt. Wilson | 1921 | 32.0 | 1.12 | ≤ 0.08 | 15 | ∼ 8-10 км/с | unclear | неопределённый |
| Миллер[20] | Кливленд | 1923-1924 | 32.0 | 1.12 | ≤ 0.03 | 40 | ∼ 5 км/с | 0.03 | да |
| Миллер (sunlight)[20] | Кливленд | 1924 | 32.0 | 1.12 | ≤ 0.014 | 80 | ∼ 3 км/с | 0.014 | да |
| TomascТомашекhek (star light)[21] | Heidelberg | 1924 | 8.6 | 0.3 | ≤ 0.02 | 15 | ∼ 7 км/с | 0.02 | да |
| Миллер[20][A 12] | Mt. Wilson | 1925-1926 | 32.0 | 1.12 | ≤ 0.088 | 13 | ∼ 8-10 км/с | unclear | unclear |
| Кеннеди[16] | Pasadena/Mt. Wilson | 1926 | 2.0 | 0.07 | ≤ 0.002 | 35 | ∼ 5 км/с | 0.002 | да |
| Иллингворт[17] | Pasadena | 1927 | 2.0 | 0.07 | ≤ 0.0004 | 175 | ∼ 2 км/с | 0.0004 | да |
| Piccard & Stahel[22] | with a Balloon | 1926 | 2.8 | 0.13 | ≤ 0.006 | 20 | ∼ 7 км/с | 0.006 | да |
| Piccard & Stahel[23] | Brussels | 1927 | 2.8 | 0.13 | ≤ 0.0002 | 185 | ∼ 2.5 км/с | 0.0007 | да |
| Piccard & Stahel[24] | Rigi | 1927 | 2.8 | 0.13 | ≤ 0.0003 | 185 | ∼ 2.5 км/с | 0.0007 | да |
| Майкельсон et al.[25] | Pasadena (Mt. Wilson optical shop) | 1929 | 25.9 | 0.9 | ≤ 0.01 | 90 | ∼ 3 км/с | 0.01 | да |
| Йоос[19] | Jena | 1930 | 21.0 | 0.75 | ≤ 0.002 | 375 | ∼ 1.5 км/с | 0.002 | да |
Недавние эксперименты
Оптические тесты
Оптические тесты изотропии скорости света стали обычным явлением[A 35]. Новые технологии, включая использование лазеров и мазеров, значительно повысили точность измерений. (В следующей таблице только Essen (1955), Jaseja (1964) и Shamir/Fox (1969) представляют собой эксперименты типа Майкельсона — Морли, то есть сравнивающие два перпендикулярных луча. В других оптических экспериментах использовались другие методы.)
| Автор | Год | Описание | Верхние границы |
|---|---|---|---|
| Луи Эссен[26] | 1955 г. | Частота вращающегося резонатора микроволнового резонатора сравнивается с частотой кварцевых часов. | ~3 км/с |
| Седархольм и др.[27][28] | 1958 г. | Два аммиачных мазера были установлены на вращающемся столе, и их лучи были направлены в противоположные стороны. | ~30 РС |
| Эксперименты с мессбауэровским ротором | 1960-68 | В серии экспериментов разных исследователей частоты гамма-лучей наблюдались с помощью эффекта Мессбауэра . | ~ 2,0 см/с |
| Джасейя и др.[29] | 1964 г. | Сравнивались частоты двух He-Ne мазеров, установленных на вращающемся столе. В отличие от Cedarholm et al. мазеры располагались перпендикулярно друг другу. | ~30 РС |
| Шамир и Фокс[30] | 1969 г. | Оба плеча интерферометра были заключены в прозрачное твердое тело (оргстекло). Источником света служил гелий-неоновый лазер . | ~7 км/с |
| Триммер и др.[31][32] | 1973 г. | Они искали анизотропию скорости света, ведущую себя как первый и третий полиномы Лежандра . Они использовали треугольный интерферометр с одной частью пути в стекле. (Для сравнения, эксперименты типа Майкельсона — Морли проверяют второй полином Лежандра)[A 27] | ~ 2,5 см/с |

Недавние эксперименты с оптическим резонатором
В начале XXI века возродился интерес к проведению точных опытов типа Майкельсона — Морли с использованием лазеров, мазеров, криогенных оптических резонаторов и т. д. Это в значительной степени связано с предсказаниями квантовой гравитации, которые предполагают, что специальная теория относительности может быть нарушена в масштабах, доступных для экспериментального изучения. Первый из этих высокоточных экспериментов был проведен Brillet & Hall (1979), в котором они проанализировали частоту лазера, стабилизированную до резонанса вращающегося оптического резонатора Фабри — Перо. Они установили ограничение на анизотропию скорости света в результате движения Земли Δc/c ≈ 10−15, где Δc — разница между скоростью света в направлениях x и y[34].
По состоянию на 2015 год эксперименты с оптическими и микроволновыми резонаторами улучшили этот предел до Δc/c ≈ 10−18. В некоторых из них устройства вращались или оставались неподвижными, а некоторые совмещались с экспериментом Кеннеди — Торндайка. В частности, направление и скорость Земли (ок. 368 км/с) относительно системы покоя реликтового излучения обычно используются в качестве эталонов в этих поисках анизотропии.
| Автор | Год | Описание | Δс/с |
|---|---|---|---|
| Вольф и др.[35] | 2003 г. | Частота стационарного криогенного микроволнового генератора, состоящего из кристалла сапфира, работающего в режиме шепчущей галереи, сравнивается с частотой водородного мазера, частота которого сравнивалась с часами атомных фонтанов на цезии и рубидии. Были проведены поиски изменений во время вращения Земли. Были проанализированы данные за 2001—2002 гг. | |
| Мюллер и др.[33] | 2003 г. | Два оптических резонатора из кристаллического сапфира, управляющие частотами двух лазеров Nd:YAG, установлены под прямым углом внутри гелиевого криостата. Компаратор частот измеряет частоту биений объединённых выходных сигналов двух резонаторов. | |
| Вольф и др.[36] | 2004 г. | См. Вольф и др. (2003). Реализован активный контроль температуры. Были проанализированы данные за 2002—2003 гг. | |
| Вольф и др.[37] | 2004 г. | См. Вольф и др. (2003). Были проанализированы данные за 2002—2004 гг. | |
| Антонини и др.[38] | 2005 г. | Подобно Мюллеру и др. (2003 г.), хотя сам аппарат был приведен во вращение. Были проанализированы данные за 2002—2004 гг. | |
| Стэнвикс и др.[39] | 2005 г. | Подобно Вольфу и др. (2003). Сравнивалась частота двух криогенных генераторов. Кроме того, аппарат был приведен во вращение. Были проанализированы данные за 2004—2005 гг. | |
| Херрманн и др.[40] | 2005 г. | Подобно Мюллеру и др. (2003). Сравниваются частоты двух полостей оптических резонаторов Фабри-Перо — одна полость непрерывно вращалась, а другая была неподвижно ориентирована с севера на юг. Были проанализированы данные за 2004—2005 гг. | |
| Стэнвикс и др.[41] | 2006 г. | См. Stanwix et al. (2005). Были проанализированы данные за 2004—2006 гг. | |
| Мюллер и др.[42] | 2007 г. | См. Herrmann et al. (2005) и Stanwix et al. (2006). Данные обеих групп, собранные в период с 2004 по 2006 год, объединяются и анализируются. Поскольку эксперименты проводятся на разных континентах, в Берлине и Перте соответственно, можно было изучить влияние как вращения самих устройств, так и вращения Земли. | |
| Эйзеле и др.[2] | 2009 г. | Сравниваются частоты пары ортогонально ориентированных оптических резонаторов стоячей волны. Полости исследовали лазером Nd:YAG . Были проанализированы данные за 2007—2008 годы. | |
| Херрманн и др.[3] | 2009 г. | Сравниваются частоты пары вращающихся ортогональных оптических резонаторов Фабри-Перо. Частоты двух лазеров Nd:YAG стабилизированы к резонансам этих резонаторов. | |
| Нагель и др.[43] | 2015 | Сравниваются частоты пары вращающихся ортогональных микроволновых резонаторов. |
Другие признаки лоренц-инвариантности
_in_D2O.gif)
Примерами других экспериментов, не основанных на принципе Майкельсона — Морли, то есть неоптических тестов изотропии, достигающих ещё более высокого уровня точности, являются сравнение часов или эксперименты Хьюза и Древера. В эксперименте Древера 1961 года ядра 7Li в основном состоянии с полным угловым моментом J = 3/2, были разделены магнитным полем на четыре равноудалённых уровня. При каждом переходе между парой соседних уровней должен испускаться фотон одинаковой частоты, в результате чего получается одна чёткая спектральная линия. Однако, поскольку ядерные волновые функции для разных MJ имеют разную ориентацию в пространстве относительно магнитного поля, любая ориентационная зависимость, будь то от эфирного ветра или от зависимости от крупномасштабного распределения массы в пространстве (см. принцип Маха), нарушило бы энергетические расстояния между четырьмя уровнями, что привело бы к аномальному уширению или расщеплению линии. Такого уширения не наблюдалось. Современные повторения такого рода экспериментов предоставили некоторые из наиболее точных подтверждений принципа лоренц-инвариантности[A 36].
Примечания
Комментарии
- ↑ Среди других уроков была необходимость контролировать вибрацию. Майкельсон (1881) писал:
…Из-за чрезвычайной чувствительности инструмента к вибрациям работа не могла вестись днём. Далее эксперимент был опробован ночью. Когда зеркала были помещены на середине плеча, полосы были видны, но их положение можно было измерить только после двенадцати часов, да и то с интервалами. Когда зеркала были сдвинуты к концам плеч, полосы были видны лишь изредка. Таким образом, оказалось, что эксперименты нельзя было проводить в Берлине, и аппарат был соответственно перемещён в Астрофизическую обсерваторию в Потсдаме… Здесь полосы при обычных обстоятельствах были достаточно слабыми, чтобы их можно было измерить, но инструмент был настолько необычайно чувствительным, что удар о тротуар примерно в 100 метрах от обсерватории приводил к полному исчезновению полос!
Оригинальный текст (англ.)…Owing to the extreme sensitiveness of the instrument to vibrations, the work could not be carried on during the day. Next, the experiment was tried at night. When the mirrors were placed half-way on the arms the fringes were visible, but their position could not be measured till after twelve o’clock, and then only at intervals. When the mirrors were moved out to the ends of the arms, the fringes were only occasionally visible. It thus appeared that the experiments could not be performed in Berlin, and the apparatus was accordingly removed to the Astrophysicalisches Observatorium in Potsdam … Here, the fringes under ordinary circumstances were sufficiently quiet to measure, but so extraordinarily sensitive was the instrument that the stamping of the pavement, about 100 meters from the observatory, made the fringes disappear entirely! - ↑ Майкельсон (1881 г.) писал:
… натриевое пламя, помещённое в точку «а», сразу дало интерференционные полосы. Затем их можно было изменить по ширине, положению или направлению лёгким движением пластины «b», и, когда они были подходящей ширины и максимальной чёткости, натриевое пламя убирали и снова заменяли лампой. Затем винт «m» медленно поворачивали до тех пор, пока полосы снова не появлялись. Тогда они, конечно, были цветными, за исключением центральной полосы, которая была почти чёрной.
Оригинальный текст (англ.)… a sodium flame placed at a produced at once the interference bands. These could then be altered in width, position, or direction, by a slight movement of the plate b, and when they were of convenient width and of maximum sharpness, the sodium flame was removed and the lamp again substituted. The screw m was then slowly turned till the bands reappeared. They were then of course colored, except the central band, which was nearly black. - ↑ Если в качестве светоделителя использовать полупосеребрённое зеркало, отраженный луч будет подвергаться другому числу отражений от передней поверхности, чем прошедший луч. При каждом отражении от передней поверхности свет будет претерпевать инверсию фазы. Поскольку два луча претерпевают разное число инверсий фаз, когда длины пути двух лучей совпадают или отличаются на целое число длин волн (например, 0, 1, 2 …), возникнет деструктивная интерференция и слабый сигнал на детекторе. Если длины пути лучей отличаются на половину целого числа длин волн (например, 0,5, 1,5, 2,5 …), конструктивная интерференция даст сильный сигнал. Результаты противоположны, если используется кубический светоделитель, потому что кубический светоделитель не делает различий между отражением от передней и задней поверхностей.
- ↑ Натриевый свет создаёт интерференционный узор, который отображает циклы нечёткости и резкости, которые повторяются каждые несколько сотен интерференционных полос на расстоянии примерно одного миллиметра. Этот паттерн обусловлен тем, что жёлтая линия D натрия на самом деле является дублетом, отдельные линии которого имеют ограниченную длину когерентности. После настройки интерферометра для отображения самой центральной части самого резкого набора полос исследователь переключался на белый свет.
- ↑ Тирринг (1926), а также Лоренц указали, что результаты Миллера не соответствуют даже самым основным критериям, необходимым для веры в их небесное происхождение, а именно, что азимут предполагаемого дрейфа должен демонстрировать ежедневные вариации, согласующиеся с вращением источника вокруг небесного полюса. Вместо этого, хотя наблюдения Миллера показывали ежедневные колебания, их колебания в одном наборе экспериментов могли быть сосредоточены, скажем, вокруг линии северо-запад-юго-восток.
Опыты
- 1 2 3 4 5 Michelson, Albert A.; Morley, Edward W. (1887). . American Journal of Science. 34 (203): 333–345. Bibcode:1887AmJS...34..333M. doi:10.2475/ajs.s3-34.203.333.
- 1 2 Eisele, Ch.; Nevsky, A. Yu.; Schillerv, S. (2009). Laboratory Test of the Isotropy of Light Propagation at the 10−17 level (PDF). Physical Review Letters. 103 (9): 090401. Bibcode:2009PhRvL.103i0401E. doi:10.1103/PhysRevLett.103.090401. PMID 19792767. Архивировано (PDF) 26 января 2022. Дата обращения: 26 января 2022.
- 1 2 Herrmann, S.; Senger, A.; Möhle, K.; Nagel, M.; Kovalchuk, E. V.; Peters, A. (2009). Rotating optical cavity experiment testing Lorentz invariance at the 10−17 level. Physical Review D. 80 (100): 105011. arXiv:1002.1284. Bibcode:2009PhRvD..80j5011H. doi:10.1103/PhysRevD.80.105011.
- 1 2 3 Michelson, Albert A. (1881). The Relative Motion of the Earth and the Luminiferous Ether. American Journal of Science. 22 (128): 120–129. Bibcode:1881AmJS...22..120M. doi:10.2475/ajs.s3-22.128.120. Архивировано 1 августа 2020. Дата обращения: 26 января 2022.
- ↑ Michelson, Albert A.; Morley, Edward W. (1886). . Am. J. Sci. 31 (185): 377–386. Bibcode:1886AmJS...31..377M. doi:10.2475/ajs.s3-31.185.377.
- 1 2 Michelson, Albert A.; Morley, Edward W. (1887). On a method of making the wave-length of sodium light the actual and practical standard of length. American Journal of Science. 34 (204): 427–430. Bibcode:1887AmJS...34..427M. doi:10.2475/ajs.s3-34.204.427. Архивировано 11 июня 2017. Дата обращения: 26 января 2022.
- 1 2 Michelson, Albert A.; Morley, Edward W. (1889). On the feasibility of establishing a light-wave as the ultimate standard of length. American Journal of Science. 38 (225): 181–6. doi:10.2475/ajs.s3-38.225.181. Архивировано 17 ноября 2017. Дата обращения: 26 января 2022.
- 1 2 The Mechanical Universe, Episode 41. Дата обращения: 26 января 2022. Архивировано 30 октября 2021 года.
- 1 2 Serway, Raymond. Physics for Scientists and Engineers, Volume 2 / Raymond Serway, John Jewett. — 7th illustrated. — Cengage Learning, 2007. — P. 1117. — ISBN 978-0-495-11244-0. Архивная копия от 2 декабря 2021 на Wayback Machine Extract of page 1117 Архивная копия от 2 декабря 2021 на Wayback Machine
- ↑ Kennedy, R. J.; Thorndike, E. M. (1932). Experimental Establishment of the Relativity of Time. Phys. Rev. 42 (3): 400–408. Bibcode:1932PhRv...42..400K. doi:10.1103/PhysRev.42.400.
- ↑ Fox, J. G. (1965), Evidence Against Emission Theories, American Journal of Physics, 33 (1): 1–17, Bibcode:1965AmJPh..33....1F, doi:10.1119/1.1971219.
- ↑ Brecher, K. (1977). Is the speed of light independent of the velocity of the source. Physical Review Letters. 39 (17): 1051–1054. Bibcode:1977PhRvL..39.1051B. doi:10.1103/PhysRevLett.39.1051.
- ↑ Filippas, T.A.; Fox, J.G. (1964). Velocity of Gamma Rays from a Moving Source. Physical Review. 135 (4B): B1071—1075. Bibcode:1964PhRv..135.1071F. doi:10.1103/PhysRev.135.B1071.
- 1 2 Morley, Edward W.; Miller, Dayton C. (1904). . Philosophical Magazine. 6. 8 (48): 753–754. doi:10.1080/14786440409463248.
- 1 2 Morley, Edward W.; Miller, Dayton C. (1905). . Proceedings of the American Academy of Arts and Sciences. XLI (12): 321–8. doi:10.2307/20022071. JSTOR 20022071.
- 1 2 Kennedy, Roy J. (1926). A Refinement of the Michelson–Morley Experiment. Proceedings of the National Academy of Sciences. 12 (11): 621–629. Bibcode:1926PNAS...12..621K. doi:10.1073/pnas.12.11.621. PMC 1084733. PMID 16577025.
- 1 2 Illingworth, K. K. (1927). A Repetition of the Michelson–Morley Experiment Using Kennedy's Refinement (PDF). Physical Review. 30 (5): 692–696. Bibcode:1927PhRv...30..692I. doi:10.1103/PhysRev.30.692. Архивировано (PDF) 23 июля 2018. Дата обращения: 26 января 2022.
- 1 2 Экспериментальные основания теории относительности // С. И. Вавилов. Собрание сочинений. Т. 4. — М.: Изд-во АН СССР, 1956.
- 1 2 Joos, G. (1930). Die Jenaer Wiederholung des Michelsonversuchs. Annalen der Physik. 399 (4): 385–407. Bibcode:1930AnP...399..385J. doi:10.1002/andp.19303990402.
- 1 2 3 4 Miller, Dayton C. (1925). Ether-Drift Experiments at Mount Wilson. Proceedings of the National Academy of Sciences. 11 (6): 306–314. Bibcode:1925PNAS...11..306M. doi:10.1073/pnas.11.6.306. PMC 1085994. PMID 16587007.
- ↑ Tomaschek, R. (1924). Über das Verhalten des Lichtes außerirdischer Lichtquellen. Annalen der Physik. 378 (1): 105–126. Bibcode:1924AnP...378..105T. doi:10.1002/andp.19243780107. Архивировано 24 февраля 2021. Дата обращения: 26 января 2022.
- ↑ Piccard, A.; Stahel, E. (1926). L'expérience de Michelson, réalisée en ballon libre. Comptes Rendus. 183 (7): 420–421. Архивировано 25 февраля 2021. Дата обращения: 26 января 2022.
- ↑ Piccard, A.; Stahel, E. (1927). Nouveaux résultats obtenus par l'expérience de Michelson. Comptes Rendus. 184: 152. Архивировано 25 февраля 2021. Дата обращения: 26 января 2022.
- ↑ Piccard, A.; Stahel, E. (1927). L'absence du vent d'éther au Rigi. Comptes Rendus. 184: 1198–1200. Архивировано 25 февраля 2021. Дата обращения: 26 января 2022.
- ↑ Michelson, A. A.; Pease, F. G.; Pearson, F. (1929). Results of repetition of the Michelson–Morley experiment. Journal of the Optical Society of America. 18 (3): 181. Bibcode:1929JOSA...18..181M. doi:10.1364/josa.18.000181.
- ↑ Essen, L. (1955). A New Æther-Drift Experiment. Nature. 175 (4462): 793–794. Bibcode:1955Natur.175..793E. doi:10.1038/175793a0.
- ↑ Cedarholm, J. P.; Bland, G. F.; Havens, B. L.; Townes, C. H. (1958). New Experimental Test of Special Relativity. Physical Review Letters. 1 (9): 342–343. Bibcode:1958PhRvL...1..342C. doi:10.1103/PhysRevLett.1.342.
- ↑ Cedarholm, J. P.; Townes, C. H. (1959). New Experimental Test of Special Relativity. Nature. 184 (4696): 1350–1351. Bibcode:1959Natur.184.1350C. doi:10.1038/1841350a0.
- ↑ Jaseja, T. S.; Javan, A.; Murray, J.; Townes, C. H. (1964). Test of Special Relativity or of the Isotropy of Space by Use of Infrared Masers. Phys. Rev. 133 (5a): 1221–1225. Bibcode:1964PhRv..133.1221J. doi:10.1103/PhysRev.133.A1221.
- ↑ Shamir, J.; Fox, R. (1969). A new experimental test of special relativity. Il Nuovo Cimento B. 62 (2): 258–264. Bibcode:1969NCimB..62..258S. doi:10.1007/BF02710136.
- ↑ Trimmer, William S.; Baierlein, Ralph F.; Faller, James E.; Hill, Henry A. (1973). Experimental Search for Anisotropy in the Speed of Light. Physical Review D. 8 (10): 3321–3326. Bibcode:1973PhRvD...8.3321T. doi:10.1103/PhysRevD.8.3321.
- ↑ Trimmer, William S.; Baierlein, Ralph F.; Faller, James E.; Hill, Henry A. (1974). Erratum: Experimental search for anisotropy in the speed of light. Physical Review D. 9 (8): 2489. Bibcode:1974PhRvD...9R2489T. doi:10.1103/PhysRevD.9.2489.2.
- 1 2 Müller, H.; Herrmann, S.; Braxmaier, C.; Schiller, S.; Peters, A. (2003). Modern Michelson–Morley experiment using cryogenic optical resonators. Phys. Rev. Lett. 91 (2): 020401. arXiv:physics/0305117. Bibcode:2003PhRvL..91b0401M. doi:10.1103/PhysRevLett.91.020401. PMID 12906465.
- ↑ Brillet, A.; Hall, J. L. (1979). Improved laser test of the isotropy of space. Phys. Rev. Lett. 42 (9): 549–552. Bibcode:1979PhRvL..42..549B. doi:10.1103/PhysRevLett.42.549.
- ↑ Wolf; et al. (2003). Tests of Lorentz Invariance using a Microwave Resonator (PDF). Physical Review Letters. 90 (6): 060402. arXiv:gr-qc/0210049. Bibcode:2003PhRvL..90f0402W. doi:10.1103/PhysRevLett.90.060402. hdl:2440/101285. PMID 12633279. Архивировано (PDF) 19 июля 2018. Дата обращения: 26 января 2022.
- ↑ Wolf, P.; Tobar, M. E.; Bize, S.; Clairon, A.; Luiten, A. N.; Santarelli, G. (2004). Whispering Gallery Resonators and Tests of Lorentz Invariance. General Relativity and Gravitation. 36 (10): 2351–2372. arXiv:gr-qc/0401017. Bibcode:2004GReGr..36.2351W. doi:10.1023/B:GERG.0000046188.87741.51.
- ↑ Wolf, P.; Bize, S.; Clairon, A.; Santarelli, G.; Tobar, M. E.; Luiten, A. N. (2004). Improved test of Lorentz invariance in electrodynamics (PDF). Physical Review D. 70 (5): 051902. arXiv:hep-ph/0407232. Bibcode:2004PhRvD..70e1902W. doi:10.1103/PhysRevD.70.051902. hdl:2440/101283. Архивировано (PDF) 30 октября 2021. Дата обращения: 26 января 2022.
- ↑ Antonini, P.; Okhapkin, M.; Göklü, E.; Schiller, S. (2005). Test of constancy of speed of light with rotating cryogenic optical resonators. Physical Review A. 71 (5): 050101. arXiv:gr-qc/0504109. Bibcode:2005PhRvA..71e0101A. doi:10.1103/PhysRevA.71.050101.
- ↑ Stanwix, P. L.; Tobar, M. E.; Wolf, P.; Susli, M.; Locke, C. R.; Ivanov, E. N.; Winterflood, J.; Kann, van F. (2005). Test of Lorentz Invariance in Electrodynamics Using Rotating Cryogenic Sapphire Microwave Oscillators. Physical Review Letters. 95 (4): 040404. arXiv:hep-ph/0506074. Bibcode:2005PhRvL..95d0404S. doi:10.1103/PhysRevLett.95.040404. PMID 16090785.
- ↑ Herrmann, S.; Senger, A.; Kovalchuk, E.; Müller, H.; Peters, A. (2005). Test of the Isotropy of the Speed of Light Using a Continuously Rotating Optical Resonator. Phys. Rev. Lett. 95 (15): 150401. arXiv:physics/0508097. Bibcode:2005PhRvL..95o0401H. doi:10.1103/PhysRevLett.95.150401. PMID 16241700.
- ↑ Stanwix, P. L.; Tobar, M. E.; Wolf, P.; Locke, C. R.; Ivanov, E. N. (2006). Improved test of Lorentz invariance in electrodynamics using rotating cryogenic sapphire oscillators. Physical Review D. 74 (8): 081101. arXiv:gr-qc/0609072. Bibcode:2006PhRvD..74h1101S. doi:10.1103/PhysRevD.74.081101.
- ↑ Müller, H.; Stanwix, Paul L.; Tobar, M. E.; Ivanov, E.; Wolf, P.; Herrmann, S.; Senger, A.; Kovalchuk, E.; Peters, A. (2007). Relativity tests by complementary rotating Michelson–Morley experiments. Phys. Rev. Lett. 99 (5): 050401. arXiv:0706.2031. Bibcode:2007PhRvL..99e0401M. doi:10.1103/PhysRevLett.99.050401. PMID 17930733.
- ↑ Nagel, M.; Parker, S.; Kovalchuk, E.; Stanwix, P.; Hartnett, J. V.; Ivanov, E.; Peters, A.; Tobar, M. (2015). Direct terrestrial test of Lorentz symmetry in electrodynamics to 10−18. Nature Communications. 6: 8174. arXiv:1412.6954. Bibcode:2015NatCo...6.8174N. doi:10.1038/ncomms9174. PMC 4569797. PMID 26323989.
Источники
- 1 2 3 Staley, Richard (2009), Albert Michelson, the Velocity of Light, and the Ether Drift, Einstein's generation. The origins of the relativity revolution, Chicago: University of Chicago Press, ISBN 978-0-226-77057-4
- ↑ Albrecht Fölsing. Albert Einstein: A Biography. — Penguin Group, 1998. — ISBN 0-14-023719-4.
- 1 2 3 Robertson, H. P. (1949). Postulate versus Observation in the Special Theory of Relativity (PDF). Reviews of Modern Physics. 21 (3): 378–382. Bibcode:1949RvMP...21..378R. doi:10.1103/RevModPhys.21.378. Архивировано 24 октября 2018.
- 1 2 3 Whittaker, Edmund Taylor. A History of the Theories of Aether and Electricity. — 1. — Longman, Green and Co., 1910.
- 1 2 3 4 5 Janssen, Michel. The Optics and Electrodynamics of Moving Bodies // Going Critical / Michel Janssen, John Stachel. — Springer, 2010. — ISBN 978-1-4020-1308-9.
- ↑ Laub, Jakob (1910). Über die experimentellen Grundlagen des Relativitätsprinzips (On the experimental foundations of the principle of relativity). Jahrbuch der Radioaktivität und Elektronik. 7: 405–463.
- ↑ Maxwell, James Clerk (1878), Ether, in Baynes, T. S. (ed.), , vol. 8 (9 ed.), New York: Charles Scribner's Sons, pp. 568–572
- ↑ Maxwell, James Clerk (1880), , Nature, 21 (535): 314–5, Bibcode:1880Natur..21S.314., doi:10.1038/021314c0
- 1 2 Miller, A.I. Albert Einstein's special theory of relativity. Emergence (1905) and early interpretation (1905–1911). — Reading : Addison–Wesley, 1981. — P. 24. — ISBN 978-0-201-04679-3.
- ↑ Fickinger, William. Physics at a Research University: Case Western Reserve, 1830–1990. — Cleveland, 2005. — P. 18–22, 48. — «The Dormitory was located on a now largely unoccupied space between the Biology Building and the Adelbert Gymnasium, both of which still stand on the CWRU campus.». — ISBN 978-0977338603.
- ↑ Hamerla, Ralph R. An American Scientist on the Research Frontier: Edward Morley, Community, and Radical Ideas in Nineteenth-Century Science. — Springer, 2006. — P. 123–152. — ISBN 978-1-4020-4089-4. Архивная копия от 30 октября 2021 на Wayback Machine
- 1 2 Miller, Dayton C. (1933). The Ether-Drift Experiment and the Determination of the Absolute Motion of the Earth. Reviews of Modern Physics. 5 (3): 203–242. Bibcode:1933RvMP....5..203M. doi:10.1103/RevModPhys.5.203.
- ↑ Blum, Edward K. Mathematics of physics and engineering / Edward K. Blum, Sergey V. Lototsky. — World Scientific, 2006. — P. 98. — ISBN 978-981-256-621-8. Архивная копия от 2 декабря 2021 на Wayback Machine, Chapter 2, p. 98 Архивная копия от 2 декабря 2021 на Wayback Machine
- ↑ Shankland, R.S. (1964). Michelson–Morley experiment. American Journal of Physics. 31 (1): 16–35. Bibcode:1964AmJPh..32...16S. doi:10.1119/1.1970063.
- ↑ Feynman, R.P. (1970), The Michelson–Morley experiment (15-3), The Feynman Lectures on Physics, vol. 1, Reading: Addison Wesley Longman, ISBN 978-0-201-02115-8
- ↑ Albert Shadowitz. Special relativity. — Reprint of 1968. — Courier Dover Publications, 1988. — P. 159–160. — ISBN 978-0-486-65743-1.
- ↑ Teller, Edward; Teller, Wendy; Talley, Wilson (2002), Conversations on the Dark Secrets of Physics, Basic books, pp. 10–11, ISBN 978-0786752379, Архивировано из оригинала 30 ноября 2021, Дата обращения: 26 января 2022
- 1 2 Schumacher, Reinhard A. (1994). Special Relativity and the Michelson-Morley Interferometer. American Journal of Physics. 62 (7): 609–612. Bibcode:1994AmJPh..62..609S. doi:10.1119/1.17535.
- ↑ Lorentz, Hendrik Antoon (1895), , Leiden: E.J. Brill, Bibcode:1895eobk.book.....L
- 1 2 Lorentz, Hendrik Antoon (1904), , Proceedings of the Royal Netherlands Academy of Arts and Sciences, 6: 809–831, Bibcode:1903KNAB....6..809L
- ↑ Poincaré, Henri (1905), , Comptes Rendus, 140: 1504–1508 (Wikisource translation)
- ↑ Einstein, A (1905-06-30). Zur Elektrodynamik bewegter Körper. Annalen der Physik (нем.). 17 (10): 890–921. Bibcode:1905AnP...322..891E. doi:10.1002/andp.19053221004. English translation: Perrett, W. On the Electrodynamics of Moving Bodies. Fourmilab. Дата обращения: 27 ноября 2009. Архивировано 1 февраля 2013 года.
- ↑ Einstein, A. (1916), , New York: H. Holt and Company
- 1 2 Stachel, John (1982), Einstein and Michelson: the Context of Discovery and Context of Justification, Astronomische Nachrichten, 303 (1): 47–53, Bibcode:1982AN....303...47S, doi:10.1002/asna.2103030110
- ↑ Michael Polanyi, Personal Knowledge: Towards a Post-Critical Philosophy, ISBN 0-226-67288-3, footnote page 10–11: Einstein reports, via Dr N Balzas in response to Polanyi's query, that "The Michelson–Morley experiment had no role in the foundation of the theory." and "..the theory of relativity was not founded to explain its outcome at all." Архивная копия от 25 декабря 2021 на Wayback Machine
- ↑ Jeroen, van Dongen (2009), On the Role of the Michelson–Morley Experiment: Einstein in Chicago, Archive for History of Exact Sciences, 63 (6): 655–663, arXiv:0908.1545, Bibcode:2009arXiv0908.1545V, doi:10.1007/s00407-009-0050-5
- 1 2 Mansouri, R.; Sexl, R.U. (1977). A test theory of special relativity: III. Second-order tests. Gen. Rel. Gravit. 8 (10): 809–814. Bibcode:1977GReGr...8..809M. doi:10.1007/BF00759585.
- ↑ Norton, John D. (2004). Einstein's Investigations of Galilean Covariant Electrodynamics prior to 1905. Archive for History of Exact Sciences. 59 (1): 45–105. Bibcode:2004AHES...59...45N. doi:10.1007/s00407-004-0085-6. Архивировано 11 января 2009. Дата обращения: 26 января 2022.
- ↑ Swenson, Loyd S. (1970). The Michelson–Morley–Miller Experiments before and after 1905. Journal for the History of Astronomy. 1 (2): 56–78. Bibcode:1970JHA.....1...56S. doi:10.1177/002182867000100108.
- ↑ Swenson, Loyd S., Jr. The Ethereal Aether: A History of the Michelson-Morley-Miller Aether-drift Experiments, 1880–1930. — University of Texas Press, 2013. — ISBN 978-0-292-75836-0. Архивная копия от 30 ноября 2021 на Wayback Machine
- ↑ Thirring, Hans (1926). Prof. Miller's Ether Drift Experiments. Nature. 118 (2959): 81–82. Bibcode:1926Natur.118...81T. doi:10.1038/118081c0.
- 1 2 Michelson, A. A.; et al. (1928). Conference on the Michelson–Morley Experiment Held at Mount Wilson, February, 1927. Astrophysical Journal. 68: 341–390. Bibcode:1928ApJ....68..341M. doi:10.1086/143148.
- ↑ Shankland, Robert S.; et al. (1955). New Analysis of the Interferometer Observations of Dayton C. Miller. Reviews of Modern Physics. 27 (2): 167–178. Bibcode:1955RvMP...27..167S. doi:10.1103/RevModPhys.27.167.
- ↑ Roberts, T.J. (2006). An Explanation of Dayton Miller's Anomalous "Ether Drift" Result. arXiv:physics/0608238.
- ↑ Relativity FAQ (2007): What is the experimental basis of Special Relativity? Архивная копия от 15 октября 2009 на Wayback Machine
- ↑ Haugan, Mark P.; Will, Clifford M. (May 1987). Modern tests of special relativity (PDF). Physics Today. 40 (5): 67–76. Bibcode:1987PhT....40e..69H. doi:10.1063/1.881074. Архивировано (PDF) 9 октября 2022. Дата обращения: 14 июля 2012.
Литература
- Млодинов Л. Евклидово окно. История геометрии от параллельных прямых до гиперпространства. — М.: Гаятри/Livebook, 2014. — 368 с. — ISBN 978-5-904584-60-3.
- Swenson, L. S. The Michelson-Morley-Miller Experiments before and after 1905 (англ.) // Journal for the History of Astronomy. — 1970. — Vol. 1. — P. 56—78.
Ссылки
- Физическая энциклопедия. Т. 3. — М.: Большая российская энциклопедия. — С. 27 Архивная копия от 2 марта 2012 на Wayback Machine—28 Архивная копия от 11 марта 2005 на Wayback Machine.
- Г. А. Лоренц. §§ 89—92. Интерференционный опыт Майкельсона // Versuch einer Theorie der elektrischen und optischen Erscheinungen in bewegten Körpern. — Leiden, 1895
- Об «опыте Майкельсона — Морли» простым языком Архивная копия от 13 сентября 2011 на Wayback Machine